


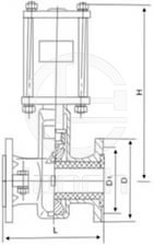
| 名称 | 材料 |
| 阀体 | 铝合金 |
| 套管 | 橡胶 |
| 阀杆 | 铸铜·碳钢 |
| 缸体 | 碳钢 |
| 压杆 | 碳钢 |
| 活塞 | 球墨铸铁 |
| 托架 | 球墨铸铁 |
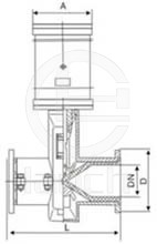
| 名称 | 材料 |
| 阀体 | 铝合金 |
| 套管 | 橡胶 |
| 阀杆 | 铸铜、碳钢 |
| 压杆 | 球墨铸铁 |
| 电动头 | 组合件 |
| 托架 | 球墨铸铁 |
| 公称通径 (DN) |
公称压力 (MPa) |
工作压力 (MPa) |
L | L1 | D | D1 | Z-Φ | H | A | 重量 (kg) |
| 25 | 0.6 | 0.6 | 160 | 124 | 115 | 85 | 4-14 | |||
| 32 | 165 | 145 | *140 | 100 | 4-18 | |||||
| 40 | 190 | 157 | *150 | 110 | 4-18 | |||||
| 50 | 210 | 160 | 160 | 125 | 4-18 | |||||
| 65 | 250 | 199 | 180 | 145 | 4-18 | |||||
| 80 | 300 | 222 | 195 | 160 | 4-18 | |||||
| 100 | 350 | 250 | 215 | 180 | 8-18 | |||||
| 125 | 430 | 318 | 245 | 210 | 8-18 | |||||
| 150 | 500 | 350 | 280 | 240 | 8-23 | 1000 | 265 | |||
| 200 | 0.4 | 0.4 | 650 | 446 | 335 | 295 | 8-23 | 1174 | 330 | |
| 250 | 800 | 516 | *395 | 350 | 12-23 | |||||
| 300 | 950 | 562 | *445 | 400 | 12-23 | |||||
| 采用标准 设计与制造:Q/JBGN02 结构长度:Q/JBGN02 法兰连接尺寸:JB78(PN1.0MPa) | ||||||||||
注:带*者法兰标准为GB4216(PN1.0MPa)
1.本网页显示的GJ6K41X-6L型常开型气动管夹阀图片、参数表等样本信息,为上海连渠所有,请勿转载,转载必究。
2.上海连渠是一家特种行业用泵专业配套的化工阀门生产厂家/制造商。生产的GJ6K41X-6L型常开型气动管夹阀,质量可靠,价格合理,如果还需要了解其他化工阀门,请来电咨询,我们也可根据客户要求专门定制。
3.由于编辑水平有限,以上信息仅作参考之用,错误和不妥之处在所难免,真诚希望您批评指正。