300X缓闭止回阀由主阀、单向阀、针阀、球阀、微形过滤器和压力表组成水力控制接管系统。利用水力自动操作,可使主阀得到较佳的开启或关闭速度。选用300X缓闭止回阀可以防止水锺水击的产生,以达到缓闭消声的效果。300X缓闭止回阀产品利用水力自力控制,不需要其它装置和能源,保养简便,开启及缓闭平稳。300X缓闭止回阀系列阀门产品广泛用于高层建筑、生活区等供水管网系统及城市供水工程。




当从300X缓闭止回阀进口端给水时,水通过微型过滤器、针阀、单向阀进入主阀控制室,再经过球阀排水至下游。因为针阀开度小于球阀开度,即主阀控制室的排水速度大于进水速度,因此控制室压力降低,作用于主阀盘下端的进口压力打开主阀向下游供水。 当管道停止供水时,若下游水开始回流,一部分回流水经球阀进入主控制室,由于单向阀作用,回流水不能从主控制室流出,引起主控制室逐渐升压,缓缓关闭主阀。
| 公称压(Mpa) | 壳体试验压力(MPa) | 密封试验压力(MPa) | 适用介质 | 介质温度(℃) |
| 1.0 | 1.5 | 1.1 | 水 | 0-80 |
| 1.6 | 2.4 | 1.76 | ||
| 2.5 | 3.75 | 2.75 |
| 零件名称 | 零件材料 |
| 阀体 阀盖 | HT200 QT250 |
| 阀座 阀盘 | 铜合金 |
| 密封圈 O型圈 | 丁腈橡胶 |
| 阀杆 | 2Cr13 |
| 弹簧 | 50CrVA |
| 针形阀 | 铜合金 |
| 球阀 | 铜合金 |
| 单向阀 | 铜合金 |
| 微型过滤器 | 不锈钢 |
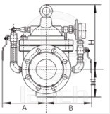
| DN | 20 | 25 | 32 | 40 | 50 | 65 | 80 | 100 | 125 | 150 | 200 | 250 | 300 | 350 | 400 | 450 |
| L | 150 | 160 | 180 | 200 | 203 | 216 | 241 | 292 | 330 | 356 | 495 | 622 | 698 | 787 | 914 | 978 |
| H1 | 179 | 179 | 179 | 210 | 210 | 215 | 245 | 305 | 365 | 415 | 510 | 560 | 658 | 696 | 735 | 735 |
| H | 342 | 342 | 342 | 395 | 395 | 405 | 430 | 510 | 560 | 585 | 675 | 730 | 760 | 840 | 910 | 910 |
1.本网页显示的300X缓闭止回阀图片、参数表等样本信息,为上海连渠所有,请勿转载,转载必究。
2.上海连渠是一家特种行业用泵专业配套的给排水阀门生产厂家/制造商。生产的300X缓闭止回阀,质量可靠,价格合理,如果还需要了解其他给排水阀门,请来电咨询,我们也可根据客户要求专门定制。
3.由于编辑水平有限,以上信息仅作参考之用,错误和不妥之处在所难免,真诚希望您批评指正。