
IS、IR型单级单吸清水离心泵(简称:IS单级单吸离心泵),系根据国际标准ISO2858所规定的性能和尺寸设计的新型单级单吸卧式清水离心泵,其技术标准均向国际标准靠拢,通用性广,全系列共140种规格,但只用四种轴;同一规格的轴,轴承,轴封,叶轮紧固件等均能互换;全系列泵的悬架也只有四种。达到国际先进水平。它是我国推广的节能泵类产品之一。泵为后开式,拆开泵盖和叶轮时不需拆卸吸水和排出管路。悬架内装有两个滚珠轴承,用机器油或润滑脂润滑。泵通过弹性联轴器由电动机直接驱动。蜗室、脚、进水法兰和出水法兰铸成一个整体。供吸送清水及物理化学性质类似水不含固体颗粒的液体。它广泛适用于工农业及城市、排水、消防供水等。
IR型热水泵是种高效节能产品供输送200℃以下热水和具有腐蚀性、粘度亦类似水的液体,主要用于彩色显像管玻壳生产过程中冷热水冲即和冶金、化工、印染、织、化工、印染、陶瓷、采暖、空调及蚀热利用等。
IR系列泵的转速2900r/min和1450r/min两种,流量为6.3-400m3/h,扬程5-80m,全系列均采用机械密封和优质软四氟垫料密封。其结构形式为卧式悬架、径向部分、后开门、中心支撑,适合于输送高温清洁的介质。产品符合GB5656-1994《离心泵技术条件(II)类》和GB3215《炼厂、化工及石油化工流程用离心泵通用技术条件》。
主要用于冶金、化工、电站、采暖、轻纺、余热利用、热交换装置等。
| 1 | 泵体 |
| 2 | 泵盖 |
| 3 | 叶轮 |
| 4 | 轴 |
| 5 | 密封环 |
| 6 | 叶轮螺母 |
| 7 | 止动垫圈 |
| 8 | 轴套 |
| 9 | 填料压盖 |
| 10 | 填料环 |
| 11 | 填料 |
| 12 | 悬架轴承部件 |

IS、IR型泵系根据国家标准ISO2858所规定的性能和尺寸设计的,主要由泵体(1)、泵盖(2)、叶轮(3)、轴(4)、密封环(5)、轴套(8)及悬架轴承部件(12)等所组成。
IS、IR型泵的泵体和泵盖的部分,是从叶轮背面处剖分的,即通常所说的后开门结构形式。其优点是检修方便,检修时不动泵体,吸入管路,排出管路和电动机,只需拆下加长联轴器的中间联接件,即可退出转子部件,进行检修。
泵的壳体(即泵体和泵盖)构成泵的工作室、叶轮、轴和滚动轴承等为泵的转子。悬架轴承部件支承着泵的转子部件,滚动轴承承受泵的径向力和轴向力。
为了平衡泵的轴向力,大多数泵的叶轮前、后均设有密封环,并在叶轮后盖板上设有平衡孔,由于有些泵轴向力不大,叶轮背面未设密封环和平衡孔。
泵的轴向密封环是由填料压盖(9),填料环(10),和填料(11)等组成,以防止进气或大量漏水。泵的叶轮如有平衡,则装有软填料的空腔与叶轮吸入口相通,若叶轮入口处液体处于真空状态,则很容易沿着轴套表面进气,故在填料腔内装有填料环通过泵盖上的小孔将泵室内压力水引至填料环进行密封。泵的叶轮如没有平衡孔,由于叶轮背面液体压力大于大气压,因而不存在漏气问题,故可不装填料环。
为避免轴磨损,在轴通过填料腔的部位装有轴套保护,轴套与轴之间装有○型密封圈,以防止沿着配合表面进气或漏水。
泵的传动方式是通过加长弹性联轴器与电动机联结的。泵的旋转方向,从驱动端看,为顺时针方向转。
1、高效节能:采用CFD计算流体动力学,分析计算出泵内压力分布和速度分布关系、优化泵的流道设计,确保泵有高效的水力形线,提高了泵的效率。
2、耐高温结构:泵体采用中心支撑方式,解决了泵在输送高温介质时防止高温下泵组热膨胀不一致而造成的应力集中以及联轴器对中心发生改变。泵支架、泵盖、悬架体(轴承部位)及机封压盖均有冷却腔,可在不同温度时分别用冷却水冷却或风冷却。
3、轴承:轴承选用圆柱滚子轴承与两个角接触轴承配套,采用稀油润滑,承载能力显着提高。轴承设计寿命
25000小时。
4、轴封:可选配软填料密封和机械密封。
5、联轴器:采用弹性柱梢联轴器,传动精度高。
6、辅助管路:按API 610第8版要求配置。
7、承压:设计压力为4.0MPa,承压高。
流量:3.8~660m3/h
扬程H:7~240m
温度:≤175℃(HT200) 175℃~230℃(热水) 230℃~400℃(热传媒)

| 型号 | 转速 n (r/min) | 流量Q | 扬程 H (m) | 效率 η (%) | 功率(KW) | 必需气蚀余量r(m) | 叶轮名 义直径 (mm) | 可代替老 产品型号 | ||
| (m3/h) | (L/S) | 轴功率 | 电机功率 | |||||||
| 50-32-125 | 2900 | 7.5 12.5 15 | 2.08 3.47 4.17 | 20 | 60 | 1.13 | 2.2 | 2.0 | 130 | 1BA-6 1B-17 |
| 1450 | 3.75 6.3 7.5 | 1.04 1.74 2.08 | 5 | 54 | 0.16 | 0.55 | 2.0 | |||
| 50-32-125A | 2900 | 6.72 11.2 13.4 | 1.86 3.11 3.74 | 16 | 60 | 0.81 | 1.1 | 116.5 | 1BA-6A | |
| 1450 | 3.36 5.6 6.7 | 0.93 1.56 1.86 | 4 | 54 | 0.04 | 0.22 | 1B-17A | |||
| 50-32-160 | 2900 | 7.5 12.5 15 | 2.08 3.47 4.17 | 32 | 54 | 2.02 | 3 | 2.0 | 158 | |
| 1450 | 3.75 6.3 7.5 | 1.04 1.74 2.08 | 8 | 48 | 0.29 | 0.55 | 2.0 | 2DA-8×4 | ||
| 50-32-160A | 2900 | 7.02 11.7 14 | 1.95 3.25 3.9 | 28 | 2.2 | 148 | 2DA-8×3 | |||
| 1450 | 3.51 5.0 7.02 | 0.97 1.64 1.95 | 7 | 48 | 0.23 | 0.40 | 2.0 | |||
| 50-32-160B | 2900 | 6.5 10.8 13 | 1.81 3.01 3.62 | 24 | 54 | 1.32 | 1.5 | 137 | ||
| 1450 | 3.25 5.4 6.5 | 1.5 | 6 | 48 | 0.17 | 0.22 | ||||
| 50-32-200 | 2900 | 7.5 12.5 15 | 2.08 3.47 4.17 | 50 | 48 | 3.45 | 5.5 | 2.0 | 198 | 2DA-8×6 |
| 1450 | 3.75 6.3 7.5 | 1.04 1.74 2.08 | 12.5 | 42 | 0.51 | 0.75 | 2.0 | |||
| 50-32-200A | 2900 | 7.02 11.7 14 | 1.95 3.25 3.9 | 44 | 48 | 2.91 | 4 | 2.0 | 185.5 | 2DA-8×5 |
| 1450 | 3.51 5.9 7.02 | 0.97 1.64 1.95 | 11 | 42 | 0.33 | 0.55 | 2.0 | |||
| 50-32-200B | 2900 | 6.53 10.8 13.1 | 1.81 3.01 3.63 | 38 | 48 | 2.34 | 3 | 2.0 | 172.5 | 2DA |
| 1450 | 3.26 5.4 6.53 | 0.91 1.5 1.81 | 9.5 | 42 | 0.42 | 0.55 | 2.0 | |||
| 50-32-250 | 2900 | 7.5 12.5 150 | 2.08 3.47 4.17 | 80 | 38 | 7.16 | 11 | 2.0 | 250 | 40D40×2 |
| 1450 | 3.75 6.3 7.5 | 1.04 1.74 2.08 | 20 | 32 | 1.07 | 1.5 | 2.0 | 2DA-8×9 | ||
| 50-32-250A | 2900 | 7.02 11.7 14 | 1.95 3.25 3.9 | 70 | 38 | 5.87 | 7.5 | 2.0 | 234 | 2DA-8×8 |
| 1450 | 3.51 5.9 6.53 | 0.97 1.64 1.81 | 17.5 | 32 | 0.88 | 1.5 | 2.0 | |||
| 50-32-250B | 2900 | 65.3 10.8 13.1 | 1.81 3.01 3.63 | 60 | 38 | 4.65 | 5.5 | 2.0 | 216.5 | 2DA-8×7 |
| 1450 | 3.26 5.4 6.53 | 0.91 1.5 1.81 | 15 | 32 | 0.69 | 1.1 | 2.0 | |||
| 65-50-125 | 2900 | 15 25 30 | 4.17 6.94 8.33 | 20 | 69 | 1.97 | 3 | 2.0 | 130 | 2BA-19 |
| 1450 | 7.5 12.5 15 | 2.08 3.47 4.17 | 5 | 64 | 0.27 | 0.55 | 2B19 | |||
| 65-50-125A | 2900 | 13.4 22.4 26.9 | 3.73 6.22 7.46 | 16 | 69 | 1.42 | 2.2 | 2.0 | 116.5 | 2BA-9A |
| 1450 | 6.72 11.2 13.4 | 1.86 3.11 3.73 | 4 | 64 | 0.19 | 0.22 | 2.0 | 2B19A | ||
| 65-50-160 | 2900 | 15 25 30 | 4.17 6.94 8.33 | 32 | 65 | 3.35 | 5.5 | 2.0 | 158.5 | 2BA-6 |
| 1450 | 7.5 12.5 15 | 2.08 3.47 4.17 | 8 | 60 | 0.45 | 0.75 | 2.0 | 2B31 | ||
| 65-50-160A | 2900 | 14 23.4 28 | 3.89 6.5 6.48 | 28 | 65 | 2.73 | 4 | 2.0 | 148 | 2BA-6A |
| 1450 | 7 11.7 14 | 1.94 3.25 3.89 | 7 | 60 | 0.37 | 0.55 | 2.0 | 2B31A | ||
| 65-50-160B | 2900 | 13 21.7 26 | 3.62 6.03 7.23 | 24 | 65 | 2.19 | 3 | 2.0 | 137.5 | 2BA-6B |
| 1450 | 6.5 10.8 13 | 1.8 3.01 3.62 | 6 | 60 | 0.29 | 0.40 | 2.0 | 2B31B | ||
| 65-40-200 | 2900 | 15 25 30 | 4.17 6.94 8.33 | 50 | 60 | 5.67 | 7.5 | 2.0 | 200 | 50D-8×6 |
| 1450 | 7.5 12.5 15 | 2.08 3.47 4.17 | 12.5 | 55 | 0.77 | 1.1 | 2.0 | |||
| 65-40-200A | 2900 | 14 23.4 28 | 3.89 6.5 6.48 | 44 | 60 | 4.67 | 5.5 | 2.0 | 187.5 | 50D-8×5 |
| 1450 | 7 11.7 14 | 1.94 3.25 3.89 | 11 | 55 | 0.63 | 0.75 | 2.0 | |||
| 65-40-200B | 2900 | 13 21.7 26 | 3.62 6.03 7.23 | 38 | 60 | 3.76 | 4 | 2.0 | 174.5 | 50D-8×4 |
| 1450 | 6.5 10.8 13 | 1.8 3.01 3.62 | 9.5 | 55 | 0.51 | 0.55 | 2.0 | |||
| 65-40-250 | 2900 | 15 25 30 | 4.17 6.94 8.33 | 80 | 50 | 10.89 | 15 | 2.0 | 254 | 2DA-8×9 |
| 1450 | 7.5 12.5 15 | 2.08 3.47 4.17 | 20 | 46 | 1.48 | 2.2 | 2.0 | |||
| 65-40-250A | 2900 | 14 23.4 28 | 3.80 6.5 6.48 | 70 | 53 | 8.42 | 11 | 2.0 | 237.5 | 50D-8×9 |
| 1450 | 7 11.7 14 | 1.94 3.25 3.89 | 17.5 | 48 | 1.17 | 2.2 | 2.0 | |||
| 65-40-250B | 2900 | 13.2 1.7 26 | 3.62 6.03 7.23 | 60 | 53 | 6.7 | 7.5 | 2.0 | 220 | 50D-8×7 |
| 1450 | 6.5 10.8 13 | 1.8 3.01 3.62 | 15 | 48 | 0.9 | 1.1 | 2.0 | |||
| 65-40-315 | 2900 | 15 25 30 | 4.17 6.94 8.33 | 125 | 50 | 21.3 | 30 | 2.5 | 315 | 50D-32×4 |
| 1450 | 7.5 12.5 15 | 2.08 3.47 4.17 | 32 | 37 | 2.94 | 4 | 2.5 | |||
| 65-40-315A | 2900 | 14.3 23.9 28.7 | 3.98 6.64 7.96 | 114 | 40 | 18.6 | 22 | 2.5 | 301 | |
| 1450 | 7.17 11.9 14.3 | 1.99 3.32 3.98 | 28.5 | 37 | 2.57 | 4 | 2.5 | |||
| 65-40-315B | 2900 | 13.6 22.7 27.2 | 3.78 6.3 7.56 | 103 | 40 | 15.9 | 18.5 | 2.5 | 286 | 50D-32×3 |
| 1450 | 6.8 11.3 13.6 | 1.89 3.15 3.78 | 25.8 | 37 | 2.2 | 3 | 2.5 | |||
| 65-40-315C | 2900 | 12.8 21.4 52.7 | 3.57 5.94 7.14 | 92 | 40 | 11.5 | 15 | 2.5 | ||
| 1450 | 6.43 10.7 12.8 | 1.78 2.97 3.57 | 23 | 37 | 1.85 | 2.2 | 2.5 | 270 | ||
| 80-65-125 | 2900 | 30 50 60 | 8.38 13.9 16.7 | 20 | 75 | 3.6 | 5.5 | 3.0 | 137 | 3BA-3 |
| 1450 | 15 25 30 | 4.17 6.94 8.33 | 5 | 71 | 0.48 | 0.75 | 2.5 | 3B19 | ||
| 80-65-125A | 2900 | 27.3 44.7 54.5 | 7.57 12.4 15.2 | 16 | 75 | 2.72 | 4 | 3.0 | 124.5 | 3BA-13A |
| 1450 | 13.6 22.4 27.3 | 3.79 6.22 7.57 | 4 | 71 | 0.36 | 0.55 | 2.5 | 3B19A | ||
| 80-65-160 | 2900 | 30 50 60 | 8.33 13.9 16.7 | 32 | 73 | 5.97 | 7.5 | 2.5 | 168 | 3BA-9 |
| 1450 | 15 25 30 | 4.17 6.94 8.33 | 8 | 69 | 0.79 | 1.5 | 2.5 | 3B33 | ||
| 80-65-160A | 2900 | 28 46.8 56 | 7.78 13 15.6 | 28 | 73 | 4.87 | 5.5 | 2.5 | 157 | 3BA-9A |
| 1450 | 14 23.4 28 | 3.9 6.5 7.78 | 7 | 69 | 0.64 | 0.75 | 2.5 | 3B33A | ||
| 80-65-160B | 2900 | 26 43.3 52 | 7.21 12 14.5 | 24 | 73 | 3.36 | 4 | 2.5 | 145.5 | 3BA-9B |
| 1450 | 13 21.7 26 | 3.6 6.03 7.21 | 6 | 69 | 0.51 | 0.55 | 2.5 | 2B33B | ||
| 80-50-200 | 2900 | 30 50 60 | 8.33 13.9 16.7 | 50 | 69 | 9.87 | 15 | 2.5 | 202 | 3BA-6 |
| 1450 | 15 25 30 | 4.17 6.94 8.33 | 125 | 65 | 1.31 | 2.2 | 2.5 | 3B57 | ||
| 80-50-200A | 2900 | 28.1 46.8 56.3 | 7.82 13 15.7 | 44 | 69 | 8.15 | 11 | 2.5 | 189.5 | 3BA-6A |
| 1450 | 14.1 23.4 28.1 | 3.91 6.5 7.82 | 11 | 65 | 1.08 | 1.5 | 2.5 | 3B57A | ||
| 80-50-200B | 2900 | 26.1 43.3 52.3 | 7.62 12 14.6 | 38 | 69 | 6.53 | 7.5 | 2.5 | 176 | 3BA-6B |
| 1450 | 13.1 21.7 26.1 | 3.63 6.03 7.26 | 9.5 | 65 | 0.87 | 1.1 | 2.5 | 3B57B | ||
| 80-50-250 | 2900 | 30 50 60 | 8.33 13.9 16.7 | 80 | 63 | 17.3 | 22 | 2.5 | 250 | 100D-16×5 |
| 1450 | 15 25 30 | 4.17 6.94 8.33 | 20 | 60 | 2.27 | 3 | 2.5 | 4DA-8×5 | ||
| 80-50-250A | 2900 | 28.1 46.8 56.3 | 7.82 13 15.7 | 70 | 63 | 14.2 | 18.5 | 2.5 | 234 | |
| 1450 | 14.1 23.4 23.1 | 3.91 6.5 7.82 | 17.5 | 60 | 1.86 | 3 | 2.5 | |||
| 80-50-250B | 2900 | 26.1 43.3 52.3 | 7.26 12 14.6 | 60 | 63 | 11.2 | 15 | 2.5 | 216.5 | 100D-16×4 |
| 1450 | 13.1 21.7 26.1 | 3.63 6.03 7.26 | 15 | 60 | 1.47 | 2.2 | 2.5 | 4DA-8×4 | ||
| 80-50-315 | 2900 | 30 50 60 | 8.33 13.9 16.7 | 125 | 54 | 31.5 | 37 | 2.5 | 315 | 100D-16×8 |
| 1450 | 15 25 30 | 4.17 6.94 8.33 | 32 | 52 | 4.19 | 5.5 | 2.5 | 4DA-8×8 | ||
| 80-50-315A | 2900 | 28.7 47.7 57.3 | 7.96 13.3 15.9 | 114 | 54 | 26.3 | 30 | 2.5 | 301 | 100D-16×6 |
| 1450 | 14.3 23.8 28.7 | 3.98 6.62 7.96 | 28.5 | 52 | 3.66 | 5.5 | 2.5 | 4DA-8×6 | ||
| 80-50-315B | 2900 | 27.2 45.4 54.5 | 7.56 12.6 15.2 | 103 | 54 | 23.6 | 30 | 2.5 | 286 | |
| 1450 | 13.6 22.7 27.2 | 3.79 6.3 7.56 | 25.8 | 52 | 3.14 | 5.5 | 2.5 | |||
| 80-50-315C | 2900 | 25.7 42.9 51.4 | 7.14 11.9 14.3 | 92 | 54 | 17 | 22 | 2.5 | 270 | |
| 1450 | 12.9 21.4 25.7 | 3.57 5.94 7.14 | 23 | 2.63 | 4 | 2.5 | ||||
| 100-80-125 | 2900 | 60 100 120 | 16.7 27.8 33.3 | 20 | 78 | 7.0 | 11 | 4.5 | 139 | 4BA-18 |
| 1450 | 30 50 60 | 8.33 13.9 16.7 | 5 | 75 | 0.91 | 1.5 | 2.5 | 4B20 | ||
| 100-80-125A | 2900 | 53.7 89.4 107 | 15 24.8 29.8 | 16 | 78 | 5.03 | 7.5 | 4.5 | 124.5 | 4BA-18A |
| 1450 | 26.9 44.7 53.7 | 7.46 12.4 15 | 4 | 75 | 0.65 | 0.75 | 2.5 | 4B20A | ||
| 100-80-160 | 2900 | 60 100 120 | 16.7 27.8 33.3 | 32 | 78 | 11.2 | 15 | 4.0 | 170 | 4BA-12 |
| 1450 | 30 50 60 | 8.33 13.9 16.7 | 8 | 75 | 1.45 | 2.2 | 2.5 | 4B35 | ||
| 100-80-160A | 2900 | 56.1 93.5 112 | 15.6 26 31.1 | 28 | 78 | 9.16 | 11 | 4.0 | 159 | 4BA-12A |
| 1450 | 28 46.8 56.1 | 7.79 13 15.6 | 7 | 75 | 1.19 | 1.5 | 2.5 | 4B35A | ||
| 100-80-160B | 2900 | 50 83.5 100 | 13.9 23.2 28 | 22.3 | 78 | 6.95 | 7.5 | 4.0 | 142 | 4BA-12B |
| 1450 | 25 41.8 50 | 6.86 11.6 13.9 | 5.6 | 75 | 0.85 | 1.1 | 2.5 | 4B35B | ||
| 100-65-200 | 2900 | 60 100 120 | 16.7 27.8 33.3 | 50 | 76 | 17.9 | 22 | 3.6 | 203 | 4BA-8A |
| 1450 | 30 50 60 | 8.33 13.9 16.7 | 12.5 | 73 | 2.33 | 4 | 2.0 | 4B60A | ||
| 100-65-200A | 2900 | 56.1 93.5 112 | 15.6 26 31.1 | 44 | 76 | 14.2 | 18.5 | 190.5 | 4BA-8B | |
| 1450 | 28 46.8 56.1 | 7.79 13 15.6 | 11 | 73 | 1.93 | 3 | 4B60B | |||
| 100-65-200B | 2900 | 52.3 86.6 10.5 | 14.6 24.1 29 | 38 | 9.94 | 15 | 177 | |||
| 1450 | 26.2 43.3 52.3 | 7.26 12 14.6 | 9.5 | 1.54 | 2.2 | |||||
| 100-65-250 | 2900 | 60 100 120 | 16.7 27.8 33.3 | 80 | 72 | 30.3 | 37 | 3.8 | 255 | DA1-125×4 |
| 1450 | 30 50 60 | 8.33 13.9 16.7 | 20 | 68 | 4.0 | 5.5 | 2.0 | |||
| 100-65-250A | 2900 | 56.1 93.5 112 | 15.6 26 31.1 | 70 | 72 | 24.8 | 30 | 3.8 | 238.5 | |
| 1450 | 28 46.8 56.1 | 7.79 13 15.6 | 17.5 | 68 | 3.27 | 4 | 2.0 | |||
| 100-65-250B | 2900 | 52.3 86.6 105 | 14.6 24.1 29 | 60 | 72 | 19.7 | 22 | 3.8 | 221 | DA1-125×3 |
| 1450 | 26.2 43.3 52.3 | 7.26 12 14.6 | 15 | 68 | 2.6 | 3 | 2.0 | |||
| 100-65-315 | 2900 | 60 100 120 | 16.7 27.8 33.3 | 125 | 66 | 51.6 | 75 | 3.6 | 315.5 | 125D-25×5 |
| 1450 | 30 50 60 | 8.33 13.9 16.7 | 32 | 63 | 6.92 | 11 | 2.0 | |||
| 100-65-315A | 2900 | 57.3 95.5 114 | 16 26.5 31.8 | 114 | 66 | 45 | 55 | 3.6 | 301.5 | |
| 1450 | 28.7 47.7 57.3 | 7.96 13.3 16 | 28.5 | 63 | 6.03 | 7.5 | 2.0 | |||
| 100-65-315B | 2900 | 54.5 90.8 109 | 15.2 25.2 30.2 | 103 | 66 | 38.6 | 45 | 3.6 | 286.5 | 125D-25×4 |
| 1450 | 27.2 45.4 54.5 | 7.56 12.6 15.2 | 25.8 | 63 | 5.18 | 7.5 | 2.0 | |||
| 100-65-315C | 2900 | 51.4 85.8 103 | 14.3 23.8 28.6 | 92 | 66 | 32.5 | 37 | 3.6 | 270.5 | |
| 1450 | 25.7 42.9 51.4 | 7.14 11.9 14.3 | 23 | 63 | 4.36 | 5.5 | 2.0 | |||
| 125-100-200 | 2900 | 120 200 240 | 33.3 55.6 66.7 | 50 | 81 | 33.6 | 45 | 4.5 | 216 | 150S-50 |
| 1450 | 60 100 120 | 16.7 27.8 33.3 | 12.5 | 76 | 4.48 | 7.5 | 2.5 | 6Sh-9 | ||
| 125-100-200A | 2900 | 113 187 225 | 31.2 52 62.5 | 44 | 81 | 27.7 | 37 | 4.5 | 202.5 | 150S-50A |
| 1450 | 56.3 93.5 113 | 15.7 26 31.2 | 11 | 76 | 3.69 | 5.5 | 2.5 | 6Sh-9A | ||
| 125-100-200B | 2900 | 105 173 209 | 29.1 48.1 58.2 | 38 | 81 | 22.3 | 30 | 4.5 | 188.5 | 150S-50B |
| 1450 | 52.4 86.5 105 | 14.6 24.1 29.1 | 9.5 | 76 | 2.98 | 4 | 2.5 | |||
| 125-100-250 | 2900 | 120 200 240 | 33.3 55.6 66.7 | 80 | 78 | 55.9 | 75 | 4.2 | 255 | 150S-78 |
| 1450 | 60 100 120 | 16.7 27.8 33.3 | 20 | 76 | 7.17 | 11 | 2.5 | |||
| 125-100-250A | 2900 | 113 187 225 | 31.2 52 62.5 | 70 | 78 | 45.7 | 55 | 238.5 | ||
| 1450 | 56.3 93.5 113 | 15.7 26 31.2 | 17.5 | 75 | 5.87 | 7.5 | ||||
| 1250-100-250B | 2900 | 105 173 209 | 29.1 48.1 58.2 | 60 | 78 | 36.4 | 45 | 221 | ||
| 1450 | 52.4 86.5 105 | 14.6 24.1 29.1 | 15 | 76 | 4.67 | 5.5 | ||||
| 125-100-315 | 2900 | 120 200 240 | 33.3 55.6 66.7 | 125 | 75 | 90.8 | 110 | 4.5 | 317 | D155-30×4 |
| 1450 | 60 100 120 | 16.7 27.8 33.3 | 32 | 73 | 11.9 | 15 | 2.2 | 150D-30×3 | ||
| 125-100-315A | 2900 | 115 191 229 | 31.8 53.1 63.6 | 114 | 75 | 78.9 | 90 | 302.5 | ||
| 1450 | 57.3 95.5 15 | 15.9 26.5 31.8 | 28.5 | 73 | 10.3 | 15 | ||||
| 125-100-315B | 2900 | 109 182 218 | 30.2 50.4 60.6 | 103 | 75 | 68.1 | 75 | 288 | ||
| 1450 | 54.5 90.8 109 | 15.2 25.2 30.2 | 25.8 | 73 | 8.92 | 11 | ||||
| 125-100-400 | 1450 | 60 100 120 | 16.7 27.8 33.3 | 50 | 65 | 21 | 30 | 2.5 | 395 | |
| 125-100-400A | 1450 | 56.3 93.5 113 | 15.7 26 31.2 | 44 | 65 | 17.3 | 22 | 2.5 | 370.5 | |
| 125-100-400B | 1450 | 52.4 86.5 150 | 14.6 24 29.1 | 38 | 65 | 13.9 | 18.5 | 2.5 | 344.5 | |
| 150-125-250 | 1450 | 120 200 240 | 33.3 55.6 66.7 | 20 | 81 | 13.5 | 18.5 | 3.0 | 260 | 6BA-12 6B20 |
| 150-125-250A | 1450 | 113 187 225 | 31.2 52 62.5 | 17.5 | 81 | 11.1 | 15 | 3.0 | 243.5 | 6BA-12A 6B20A |
| 150-125-250B | 1450 | 105 173 209 | 29.1 48.1 58.2 | 15 | 81 | 8.75 | 11 | 3.0 | 225 | 6BA-12B 6B20B |
| 150-125-315 | 1450 | 120 200 240 | 33.3 55.6 66.7 | 32 | 79 | 21.08 | 30 | 2.5 | 325 | 6BA-8 6B33 |
| 150-125-315A | 1450 | 113 187 225 | 31.2 52 62.5 | 28 | 80 | 17.8 | 22 | 2.5 | 304 | 6BA-8A 6B33A |
| 150-125-315B | 1450 | 105 173 209 | 29.1 48.1 58.2 | 24 | 80 | 14.2 | 18.5 | 2.5 | 281.5 | 6BA-8B 6B33B |
| 150-125-400 | 1450 | 120 200 240 | 33.3 55.6 66.7 | 50 | 75 | 36.3 | 45 | 2.8 | 399.5 | |
| 150-125-400A | 1450 | 113 187 225 | 31.2 52 62.5 | 44 | 75 | 29.9 | 37 | 2.8 | 374.5 | |
| 150-125-400B | 1450 | 113 187 225 | 31.2 52 62.5 | 38 | 75 | 24.1 | 30 | 2.8 | 348.5 | |
| 200-150-250 | 1450 | 240 400 460 | 66.7 111.1 128 | 20 | 82 | 26.6 | 37 | 4.2 | 275 | 8BA-18 8B18 |
| 200-150-250A | 1450 | 225 374 431 | 62.5 104 120 | 17.5 | 82 | 21.8 | 30 | 4.2 | 257.5 | 8BA-18A 8B18A |
| 200-150-250B | 1450 | 208 346 398 | 57.7 96.2 111 | 15 | 82 | 17.2 | 22 | 4.2 | 238 | 8BA-18B 8B18B |
| 200-150-315 | 1450 | 240 400 460 | 66.7 111 128 | 32 | 82 | 42.5 | 55 | 3.5 | 346 | 8BA-12 |
| 200-150-315A | 1450 | 225 374 431 | 62.5 104 120 | 28 | 82 | 35.4 | 45 | 3.5 | 325.5 | 8BA-12A |
| 200-150-315B | 1450 | 208 346 398 | 57.7 96.2 111 | 24 | 82 | 27.9 | 37 | 301.5 | 8BA-12B | |
| 200-150-400 | 1450 | 240 400 460 | 66.7 111 128 | 50 | 81 | 67.2 | 90 | 3.8 | 395 | |
| 200-150-400A | 1450 | 225 374 431 | 62.5 104 120 | 44 | 81 | 55.5 | 75 | 3.8 | 370.5 | |
| 200-150-400B | 1450 | 208 346 398 | 57.7 96.2 111 | 38 | 81 | 44.6 | 55 | 3.8 | 344.5 | |

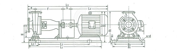
| 产品型号 | 机座号 功率 | |||||||||||||||||||
| A | L1 | L2 | L3 | L4 | a | f | X | L5 | B1 | B2 | B3 | h1 | h2 | h3 | H | H1 | H2 | n-d | ||
| 50-32-125 | 80-4/0.55 | 80 | 820 | 150 | 540 | 285 | 80 | 385 | 100 | 850 | 150 | 360 | 320 | 112 | 170 | 25 | 237 | 377 | 327 | 4-ф18.5 |
| 80-2/1.1 | 310 | 875 | 115 | |||||||||||||||||
| 90S-2/1.5 | 920 | 170 | 600 | 335 | 190 | 337 | ||||||||||||||
| 90L-2/2.2 | 900 | 390 | 350 | |||||||||||||||||
| 50-32-160 | 80-4/0.55 | 80 | 820 | 150 | 540 | 285 | 80 | 385 | 100 | 850 | 150 | 360 | 320 | 132 | 170 | 25 | 257 | 417 | 347 | 4-ф18.5 |
| 90S-2/1.5 | 310 | 875 | 155 | 190 | 357 | |||||||||||||||
| 90L-2/2.2 | 920 | 170 | 600 | 335 | 900 | 390 | 350 | |||||||||||||
| 100L-2/3 | 380 | 945 | 180 | 245 | 402 | |||||||||||||||
| 50-32-200 | 80-4/0.75 | 80 | 820 | 150 | 540 | 285 | 80 | 385 | 100 | 850 | 150 | 360 | 320 | 160 | 170 | 25 | 285 | 465 | 375 | 4-ф18.5 |
| 100L-2/3 | 920 | 170 | 600 | 380 | 945 | 180 | 390 | 350 | 245 | 430 | ||||||||||
| 112M-2/4 | 400 | 965 | 190 | 265 | 438 | |||||||||||||||
| 132S-2/5.5 | 1020 | 190 | 600 | 475 | 1040 | 210 | 450 | 400 | 315 | 30 | 468 | 4-ф24 | ||||||||
| 50-32-250 | 90S-4/1.1 | 95 | 1020 | 190 | 660 | 310 | 100 | 500 | 100 | 1010 | 155 | 450 | 400 | 180 | 190 | 30 | 305 | 530 | 450 | 4-ф24 |
| 90L-4/1.5 | 335 | 1035 | 315 | 320 | 545 | 503 | ||||||||||||||
| 132S-2/2.7 | 1160 | 210 | 740 | 475 | 1175 | 310 | 490 | 440 | ||||||||||||
| 160M-2/11 | 1290 | 225 | 840 | 600 | 1300 | 255 | 540 | 490 | 385 | 340 | 565 | 565 | ||||||||
| 65-50-125 | 80-4/0.55 | 80 | 820 | 150 | 540 | 285 | 80 | 385 | 100 | 850 | 150 | 360 | 320 | 112 | 170 | 25 | 237 | 377 | 327 | 4-ф18.5 |
| 90S-2/1.5 | 310 | 875 | 155 | 190 | 337 | |||||||||||||||
| 90L-2/2.2 | 920 | 170 | 600 | 335 | 900 | 390 | 350 | |||||||||||||
| 100L-2/3 | 380 | 945 | 180 | 245 | 382 | |||||||||||||||
| 65-50-160 | 80-4/0.75 | 80 | 820 | 150 | 540 | 285 | 80 | 385 | 100 | 850 | 150 | 360 | 320 | 132 | 170 | 25 | 257 | 417 | 347 | 4-ф18.5 |
| 100L-2/3 | 920 | 170 | 600 | 380 | 945 | 180 | 390 | 350 | 245 | 402 | ||||||||||
| 112M-2/4 | 400 | 965 | 190 | 265 | 410 | |||||||||||||||
| 132S-2/5.5 | 1020 | 190 | 660 | 475 | 1040 | 210 | 450 | 400 | 315 | 30 | 440 | 4-ф24 | ||||||||
| 65-40-200 | 80-4/0.75 | 80 | 920 | 170 | 600 | 285 | 100 | 385 | 100 | 870 | 150 | 390 | 350 | 160 | 170 | 25 | 285 | 465 | 375 | 4-ф18.5 |
| 90S-4/1.1 | 310 | 895 | 155 | 190 | 385 | |||||||||||||||
| 112M-2/4 | 400 | 985 | 190 | 265 | 438 | |||||||||||||||
| 132S-2/7.5 | 1020 | 190 | 660 | 475 | 1060 | 210 | 450 | 400 | 315 | 30 | 468 | 4-ф24 | ||||||||
| 65-40-250 | 90S-4/1.1 | 95 | 1020 | 190 | 660 | 310 | 100 | 500 | 100 | 1010 | 155 | 450 | 400 | 180 | 190 | 30 | 305 | 530 | 405 | 4-ф24 |
| 90L-4/1.5 | 335 | 1035 | ||||||||||||||||||
| 100L-4/2.2 | 1160 | 210 | 740 | 380 | 1080 | 180 | 245 | 450 | ||||||||||||
| 132S-2/7.5 | 1290 | 225 | 840 | 475 | 1175 | 210 | 490 | 440 | 315 | 320 | 545 | 503 | ||||||||
| 160M-2/15 | 600 | 1300 | 255 | 540 | 490 | 285 | 340 | 656 | 565 | |||||||||||
| 65-40-315 | 100L-4/3 | 95 | 1140 | 210 | 740 | 380 | 125 | 500 | 100 | 1105 | 180 | 490 | 440 | 200 | 245 | 30 | 340 | 590 | 485 | 4-ф24 |
| 112M-4/4 | 400 | 1125 | 190 | 265 | 492 | |||||||||||||||
| 160L-2/18.5 | 1290 | 225 | 840 | 645 | 1370 | 255 | 540 | 490 | 385 | 360 | 610 | 585 | ||||||||
| 180M-2/22 | 670 | 1395 | 285 | 460 | 610 | |||||||||||||||
| 200L-2/30 | 1420 | 250 | 940 | 775 | 1500 | 310 | 610 | 550 | 475 | 380 | 630 | 655 | 4-ф28 | |||||||
| 80-65-125 | 80-4/0.75 | 80 | 820 | 150 | 540 | 285 | 100 | 385 | 100 | 870 | 150 | 360 | 320 | 132 | 170 | 40 | 257 | 417 | 347 | 4-ф18.5 |
| 100L-2/3 | 920 | 170 | 600 | 380 | 965 | 180 | 390 | 350 | 245 | 25 | 402 | |||||||||
| 112M-2/4 | 400 | 985 | 190 | 265 | 410 | |||||||||||||||
| 132S-2/5.5 | 1020 | 190 | 660 | 475 | 1060 | 210 | 450 | 400 | 315 | 30 | 440 | 4-ф24 | ||||||||
| 80-65-160 | 80-4/0.75 | 80 | 920 | 170 | 600 | 285 | 100 | 385 | 100 | 870 | 150 | 390 | 350 | 160 | 170 | 30 | 285 | 465 | 375 | 4-ф18.5 |
| 90S-4/1.1 | 310 | 895 | 155 | 190 | 385 | |||||||||||||||
| 90L-4/1.5 | 335 | 920 | ||||||||||||||||||
| 112M-2/4 | 400 | 985 | 190 | 265 | 438 | |||||||||||||||
| 132S-2/7.5 | 1020 | 190 | 660 | 475 | 1060 | 210 | 450 | 400 | 315 | 30 | 468 | 4-ф24 | ||||||||
| 80-50-200 | 90S-4/1.1 | 80 | 920 | 170 | 600 | 310 | 100 | 385 | 100 | 895 | 155 | 390 | 350 | 160 | 190 | 25 | 285 | 485 | 385 | 4-ф18.5 |
| 90L-4/1.5 | 335 | 920 | ||||||||||||||||||
| 100L-4/2.2 | 380 | 965 | 180 | 245 | 430 | |||||||||||||||
| 132S-2/7.5 | 1020 | 190 | 660 | 475 | 1060 | 210 | 450 | 400 | 315 | 468 | ||||||||||
| 160M-2/15 | 1140 | 210 | 740 | 600 | 1185 | 255 | 190 | 440 | 385 | 30 | 300 | 500 | 525 | 4-ф24 | ||||||
| 80-50-250 | 100L-4/3 | 95 | 1020 | 190 | 660 | 380 | 25 | 500 | 100 | 1102 | 180 | 450 | 400 | 180 | 245 | 30 | 305 | 530 | 450 | 4-ф24 |
| 160M-2/15 | 1290 | 225 | 840 | 600 | 1325 | 255 | 540 | 490 | 385 | 340 | 565 | 565 | ||||||||
| 160L-2/18.5 | 615 | 1370 | ||||||||||||||||||
| 180M-2/22 | 670 | 1395 | 285 | 430 | 590 | |||||||||||||||
| 80-50-315 | 112M-4/4 | 95 | 1140 | 210 | 740 | 400 | 125 | 500 | 100 | 1125 | 190 | 490 | 440 | 225 | 265 | 30 | 365 | 645 | 518 | 4-ф24 |
| 132S-4/5.5 | 1160 | 475 | 1200 | 210 | 315 | 548 | ||||||||||||||
| 180M-2/22 | 1290 | 225 | 840 | 670 | 1395 | 285 | 540 | 490 | 430 | 385 | 665 | 635 | ||||||||
| 200L-2/37 | 1420 | 250 | 940 | 775 | 1500 | 310 | 610 | 550 | 475 | 40 | 405 | 685 | 680 | 4-ф28 | ||||||
| 100-80-125 | 80-4/0.75 | 95 | 920 | 170 | 600 | 280 | 100 | 385 | 100 | 870 | 150 | 390 | 350 | 160 | 170 | 25 | 285 | 465 | 375 | 4-ф18.5 |
| 90S-4/1.1 | 310 | 895 | 155 | 190 | 385 | |||||||||||||||
| 90L-4/1.5 | 335 | 920 | ||||||||||||||||||
| 132S-4/7.5 | 1020 | 190 | 660 | 475 | 1060 | 210 | 450 | 400 | 315 | 30 | 468 | 4-ф24 | ||||||||
| 100-80-160 | 90L-4/1.5 | 95 | 1020 | 190 | 660 | 335 | 100 | 500 | 100 | 1035 | 155 | 450 | 400 | 160 | 190 | 30 | 285 | 485 | 385 | 4-ф24 |
| 100L-2/2.2 | 380 | 1080 | 180 | 245 | 430 | |||||||||||||||
| 160M-2/15 | 1290 | 225 | 840 | 600 | 1300 | 255 | 540 | 490 | 385 | 320 | 520 | 545 | ||||||||
| 100-65-200 | 100L-4/3 | 95 | 1140 | 210 | 740 | 380 | 100 | 500 | 140 | 1120 | 180 | 490 | 440 | 180 | 245 | 30 | 320 | 545 | 465 | 4-ф24 |
| 112M-4/4 | 400 | 1140 | 190 | 265 | 473 | |||||||||||||||
| 160M-2/15 | 1290 | 225 | 840 | 600 | 1340 | 225 | 540 | 490 | 385 | 340 | 565 | 565 | ||||||||
| 160L-2/18.5 | 645 | 1385 | ||||||||||||||||||
| 180M-2/22 | 670 | 1410 | 285 | 430 | 590 | |||||||||||||||
| 100-65-250 | 100L-4/3 | 110 | 1140 | 210 | 740 | 380 | 125 | 500 | 140 | 1145 | 180 | 490 | 440 | 200 | 245 | 30 | 340 | 590 | 485 | 4-ф24 |
| 112M-4/4 | 400 | 1165 | 190 | 265 | 493 | |||||||||||||||
| 132S-4/5.5 | 1160 | 475 | 1240 | 210 | 315 | 523 | ||||||||||||||
| 180M-2/22 | 1290 | 225 | 840 | 670 | 1435 | 285 | 540 | 490 | 430 | 360 | 610 | 610 | ||||||||
| 200L-2/37 | 1420 | 250 | 940 | 775 | 1540 | 310 | 610 | 550 | 475 | 40 | 380 | 630 | 655 | 4-ф28 | ||||||
| 100-65-315 | 132S-4/5.5 | 110 | 1270 | 225 | 840 | 475 | 125 | 530 | 140 | 1270 | 210 | 540 | 490 | 225 | 315 | 30 | 385 | 665 | 568 | 4-ф24 |
| 132S-4/7.5 | 515 | 1310 | ||||||||||||||||||
| 160M-4/11 | 600 | 1395 | 255 | 385 | 610 | |||||||||||||||
| 200L-2/37 | 1420 | 250 | 940 | 775 | 1570 | 310 | 610 | 550 | 475 | 40 | 405 | 685 | 680 | 4-ф28 | ||||||
| 225M-2/45 | 1620 | 290 | 1060 | 815 | 1610 | 345 | 660 | 600 | 530 | 425 | 705 | 730 | ||||||||
| 250M-2/55 | 930 | 1725 | 385 | 575 | 750 | |||||||||||||||
| 280S-2/75 | 1820 | 320 | 1200 | 1000 | 1795 | 410 | 730 | 670 | 640 | 785 | ||||||||||
| 125-100-200 | 112M-4/4 | 110 | 1140 | 210 | 740 | 400 | 125 | 500 | 140 | 1165 | 190 | 490 | 440 | 200 | 265 | 30 | 340 | 620 | 493 | 4-ф24 |
| 132S-4/5.5 | 1160 | 475 | 1240 | 201 | 315 | 523 | ||||||||||||||
| 132S-4/7.5 | 515 | 1280 | ||||||||||||||||||
| 180M-2/22 | 1290 | 225 | 840 | 670 | 1435 | 285 | 540 | 490 | 430 | 360 | 640 | 610 | ||||||||
| 200L-2/37 | 1420 | 250 | 940 | 775 | 1540 | 130 | 610 | 550 | 475 | 40 | 380 | 660 | 655 | 4-ф28 | ||||||
| 125-100-250 | 132S-4/5.5 | 110 | 1270 | 225 | 840 | 475 | 140 | 530 | 140 | 1285 | 210 | 540 | 490 | 225 | 315 | 30 | 385 | 665 | 568 | 4-ф24 |
| 132M-4/7.5 | 515 | 1325 | ||||||||||||||||||
| 160M-4/11 | 600 | 1410 | 255 | 385 | 610 | |||||||||||||||
| 200L-2/37 | 1420 | 250 | 940 | 775 | 1585 | 310 | 610 | 550 | 475 | 40 | 405 | 685 | 680 | 4-ф28 | ||||||
| 225M-2/45 | 1620 | 290 | 1060 | 875 | 1625 | 345 | 600 | 600 | 530 | 425 | 705 | 730 | ||||||||
| 225M-2/55 | 930 | 1740 | 385 | 575 | 750 | |||||||||||||||
| 280S-2/75 | 1820 | 320 | 1200 | 1000 | 1810 | 410 | 730 | 670 | 640 | 785 | ||||||||||
| 125-100-315 | 160M-4/11 | 110 | 1270 | 225 | 840 | 600 | 140 | 530 | 140 | 1410 | 255 | 540 | 490 | 250 | 385 | 30 | 410 | 725 | 635 | 4-ф24 |
| 160L-4/15 | 1420 | 250 | 940 | 645 | 1455 | 610 | 550 | 40 | 430 | 745 | 655 | 4-ф28 | ||||||||
| 280S-2/75 | 1820 | 320 | 600 | 1000 | 1810 | 410 | 730 | 670 | 640 | 450 | 765 | 810 | ||||||||
| 280M-2/90 | 1020 | 1860 | ||||||||||||||||||
| 315S-2/110 | 1190 | 2000 | 460 | 800 | 740 | 760 | 895 | |||||||||||||
| 125-100-400 | 160L-4/15 | 130 | 1620 | 290 | 1060 | 645 | 140 | 530 | 140 | 1455 | 255 | 660 | 600 | 280 | 385 | 40 | 480 | 835 | 705 | 4-ф28 |
| 180M-4/18.5 | 670 | 1480 | 285 | 430 | 730 | |||||||||||||||
| 180L-4/22 | 710 | 1520 | ||||||||||||||||||
| 200L-4/30 | 775 | 1585 | 310 | 475 | 755 | |||||||||||||||
| 150-125-250 | 160M-4/11 | 110 | 1270 | 225 | 840 | 600 | 140 | 530 | 140 | 1410 | 255 | 540 | 490 | 250 | 385 | 30 | 410 | 765 | 635 | 4-ф24 |
| 160L-4/15 | 1420 | 250 | 940 | 645 | 1455 | 610 | 550 | 40 | 430 | 785 | 635 | 4-ф28 | ||||||||
| 180M-4/18.5 | 670 | 1480 | 285 | 430 | 680 | |||||||||||||||
| 150-125-315 | 180M-4/18.5 | 130 | 1620 | 290 | 1060 | 670 | 140 | 530 | 140 | 1480 | 285 | 660 | 600 | 280 | 430 | 40 | 480 | 835 | 730 | 4-ф28 |
| 180L-4/22 | 710 | 1520 | ||||||||||||||||||
| 200L-4/30 | 775 | 1585 | 310 | 475 | 755 | |||||||||||||||
| 150-125-400 | 200L-4/30 | 130 | 1620 | 290 | 1060 | 775 | 140 | 530 | 140 | 1580 | 310 | 660 | 600 | 315 | 475 | 40 | 515 | 915 | 790 | 4-ф28 |
| 225S-4/37 | 820 | 1630 | 345 | 530 | 820 | |||||||||||||||
| 225M-4/45 | 845 | 1655 | ||||||||||||||||||
| 200-150-250 | 180L-4/22 | 130 | 1620 | 290 | 1060 | 710 | 160 | 530 | 180 | 1580 | 285 | 660 | 600 | 280 | 430 | 40 | 480 | 855 | 730 | 4-ф28 |
| 200L-4/30 | 775 | 1645 | 310 | 475 | 755 | |||||||||||||||
| 225M-4/37 | 820 | 1890 | 345 | 530 | 785 | |||||||||||||||
| 200-150-315 | 200L-4/30 | 130 | 18200 | 320 | 1200 | 775 | 160 | 670 | 180 | 1785 | 310 | 730 | 670 | 315 | 475 | 40 | 515 | 915 | 790 | 4-ф28 |
| 225S-4/37 | 820 | 1830 | 345 | 530 | 820 | |||||||||||||||
| 225M-4/45 | 745 | 1855 | ||||||||||||||||||
| 250M-4/55 | 930 | 1940 | 385 | 575 | 840 | |||||||||||||||
| 200-150-400 | 225N-4/45 | 130 | 1840 | 320 | 1200 | 845 | 160 | 670 | 180 | 1855 | 345 | 730 | 670 | 315 | 530 | 40 | 515 | 965 | 820 | 4-ф28 |
| 250M-4/55 | 930 | 1490 | 385 | 575 | 840 | |||||||||||||||
| 280S-4/75 | 1000 | 2010 | 410 | 640 | 875 | |||||||||||||||
| 280M-4/90 | 1050 | 2060 |
1.本网页显示的IS单级单吸离心泵安装尺寸、外形尺寸、图片、流量、扬程、功率、参数表等样本信息,为”LQ牌“离心泵厂家上海连渠泵业所有,请勿转载,转载必究。
2.上海连渠泵业有限公司是一家专业的给排水用泵生产厂家/制造商。生产的IS单级单吸离心泵,质量可靠,价格合理,如果还需要了解其他给排水用泵,请来电咨询,我们也可根据客户要求专门定制。
3.由于编辑水平有限,以上信息仅作参考之用,错误和不妥之处在所难免,真诚希望您批评指正。
给排水系统是任何建筑都必不可少的重要组成部分。一般建筑物的给排水系统包括生活给水系统、生活排水系统和消防水系统,这几个系统都是楼宇自动化系统重要的监控对象。上海连渠泵业有限公司生产的管道泵、离心泵、多级泵、给水泵、变频恒压供水设备、无负压给水设备、消防稳压给水设备等给排水用泵已被各大城市城建、消防等用户大量使用,并受到广大用户的不断好评。