
传统的供水方式离不开蓄水池,蓄水池中的水一般由自来水管供给,这样,有压力的水进入水池后变成了零,造成大量的能源白白浪费。 WZG智能无负压给水设备,是我公司专业技术人员在气压给水设备的基础上开发的一种能直接与自来水管网连接、且对自来水管网不产生任何负作用的成套给水设备。它可以取代蓄水池,能充分利用自来水管网的压力直接供水或间接供水,避免了能源的二次浪费和二次污染,大幅度节省了基建投资并缩短了施工工期。WZG智能无负压给水设备由智能型变频控制柜、稳流罐、水泵机组、仪表、阀门及管路、基座等组成,适用于一切需要增高水压、恒定流量的给水系统。
1. 无需建水池-节能、节资
WZG系列智能无负压给水设备经济卫生、节能效果显著,实践证明:使用智能型无负压给水设备可节省50%以上的兴建水池费用,与其它供不设备相比,可节电20%~40%;
2. 安装简单、节省占地面积
WZG系列智能无负压给水设备既可配置卧式稳流罐,亦可配置立式稳流罐。两种稳流罐具有不同的特点:卧式稳流罐占据空间小;立式稳流罐占地面积小。稳流罐的制造、检验均符合GB150(钢制压力容器)的规定,但因罐内不储存压缩气体,所以不须列入压力容器的管路范围。罐的内壁采用先进的“841环氧聚铣胺食品容器内壁涂料”防腐,产品符合上海市食品卫生标准;
3. 用途广泛、适用性强WZG系列智能无负压给水设备可作生活供水用,也可作消防供水用,可配置任意型号的水泵,当设备用于消防时,宜配备消防专用水泵;
4. 功能全、智能化程度高
WZG系列智能无负压给水设备采用了先进的变频控制技术,具有软启动,有过载、短路、过压、欠压、缸相、过热和失速保护等功能。在异常情况下能进行信号报警、自检、故障判断等,还可根据用水量的高低自动调节供水流量;
5. 产品先进、质量可靠
WZG系列智能无负压给水设备使用的配件,经过了诸多生产厂家的筛选,具有可靠的质量保证,产品中的关键零部件,如电机、水泵轴承、变频器、断路器、接触器、继电器等还采用了国际、国内名牌产品;
6. 个性化设计、独树一帜
WZG系列智能无负压给水设备可根据自来水管网压力稳定情况,配置小型气压罐,避免水泵频繁启动,以延长设备使用寿命,其蓄能、稳压性能更加显著。
WZG 90 /60 2 D
WZG--------------------------------智能无负压给水设备
90---------------------------------供水压力(m)
60---------------------------------最大供水流量(m3/h)
2----------------------------------水泵台数:用数字表示
D----------------------------------水泵类型:D-DL型. G-GDL型. L-LG型
1:环境温度:0-40℃
2:空气相对湿度:≤85%(20≠5℃时)
3:介质温度:4-70℃
4:供电电压:380V(+5%. -10%)
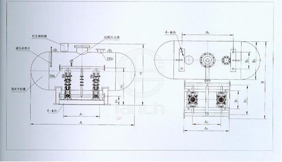
设备投入使用,自来水管网的水进入稳流罐,罐内空气从真空消声器排出,待水充满后,真空消声器自动关闭。当自来水管网压力能够满足用水要求时,系统由旁通止回阀向用水管网直接供水;当自来水管网压力不能满足用水要求时,系统压力信号由远传压力表反馈给变频控制器,水泵运行,并根据用水量的大小自动调节转速恒压供水,若运转水泵达到工频转速时,则启动另一台水泵变频运转。水泵供水时,若自来水管网的水量大于水泵流量,系统保持正常供水:用水高峰时,若自来水管网水量小于水泵流量时,稳流罐内的水作为补充水源仍能正常供水,此时,空气由真空消声器进入稳流罐,罐内真空遭到破坏,确保了自来水管网不产生负压,用水高峰过后,系统又恢复到正常供水状态。当自来水管网停水,造成稳流罐液位不断下降,液位探测器将信号反馈给变频控制柜,水泵自动停机,以保护水泵机组。夜间小流量供水且自来水管网压力不能满足要求时,气压罐可以贮存并释放能量,避免了水泵频繁启动。
适用于任何自来水压力不足地区的加压技术:
新建的住宅小区或办公楼等生活用水。
低层自来水压力不能满足要求的消防用水。
改造建好水池的,可以采用无负压设备与水池共用的供水方式,进一步节能。
自来水的供水中间加压泵站。
工矿企业的生产. 生活用水等。
各种循环系统。
| 传统的水池供水设备 | 智能无负压给水设备 | |
| 供水方式 | 必须建水池或设水箱,自来水全部放入池或水箱中,再二次加压供水。![]() |
不用建水池或设水箱,与自来水管道直接串接加压供水,可充分利用自来水原有的压力。![]() |
| 供水质量 | 纯净的自来水全部放入水池中,各种杂物极易进入水池,严重污染水源,被污染的水经过加压后供给住户饮用,严重影响住户的身体健康。 | 纯净的自来水经过设备加压后直接供到住户,稳流补偿罐防腐处理,密封连接,水源没有任何污染,水质质量好,用户可以喝点符合卫生标准的饮用水。采用微机变频软启动恒压控制,水压平稳,水压质量好。 |
| 节能情况 | 自来水过来的水全部放入水池,原有的压力全部变为零,再从零开始重新加压供水,能量白白浪费。例如某小区楼高为6层,用水高峰自来水可以供到4楼,底峰期可以供到6楼,若采用水池供水设备,原有的水压全部浪费掉,设备必须从1层加压到6层,一旦停电,住户就停水。这种供水方式耗能大,设备运行费用高,使用不经济。 | 与自来水管道直接串接,可充分利用自来水管道原有的压力,差多少,补多少,自来水满足要求时,设备就停止工作,节能效果极其显著,可达50%-90%以上。例如某小区楼高为6层,用水高峰期自来水可以供到4楼,低峰期可以供到6楼,那么采用此设备在用水高峰期仅对5~6层进行加压,在用水低峰期设备就停止工作,停电可恢复自来水的常压供水。这种供水方式耗能小,设备运费用低,使用经济。 |
| 安装情况 | 必须修水池或设水箱,工程量大,施工. 安装麻烦,工期长,设备占地面积大。 | 不用建水池. 不用安装水箱,成套设备出厂到现场后,用户的自来水进水管和出水管直接与设备对接即可,安装简单,施工周期短。设备可以直接安装在地下泵池中,不占地方。 |
| 投资情况 | 修水池和设水箱,建泵房,设备占地面积大,工程总投资大。因水质污染严重,需要上净化水设备,投资增大。自来水原有的压力不能利用,设备始终从零压力开始供水,耗能大,天长日久费用大。因使用水池或水箱,需要定期清洗消毒,增加了日常开支。这种供水方式,投资大,使用不经济。 | 不用修水池或设水箱,工程总投资可减少60%以上。不用为该设备专门设备地方,节省土地投资。使用该设备水质没有污染,不需要安装净化水设备,进一步节省投资。因该设备可以充分利用自来水管网的压力,耗能小,节省日常的用电开支,使用非常经济。因没有水池或水箱,节省了定期清洗消毒的费用。这种供水方式,投资小,使用经济。 |
| 序号 | 设备型号 | 流量 (m3/h) | 扬程 (m) | 参数户数 | 推荐水泵 | 稳流罐型号Φ×L | 电控柜型号 | ||
| 型号 | 台数 | 功率(Kw) | |||||||
| 1 | WZG30/6-2L | 4.8 6 6.4 | 31.2 30 23.1 | 10 15 30 | 25LG3-10×3 | 2 | 1.1 | Φ600×1.5 | DKG1.1-2 |
| 2 | WZG40/6-2L | 4.8 6 6.4 | 41.6 40 30.8 | 10 15 30 | 25LG3-10×4 | 2 | 1.5 | Φ600×1.5 | DKG1.5-2 |
| 3 | WZG50/6-2L | 4.8 6 6.4 | 52 50 38.5 | 10 15 30 | 25LG3-10×5 | 2 | 1.5 | Φ600×1.5 | DKG1.5-2 |
| 4 | WZG60/6-2L | 4.8 6 6.4 | 62.4 60 46.2 | 10 15 30 | 25LG3-10×6 | 2 | 2.2 | Φ600×1.5 | DKG2.2-2 |
| 5 | WZG70/6-2L | 4.8 6 6.4 | 72.8 70 53.9 | 10 15 30 | 25LG3-10×7 | 2 | 2.2 | Φ600×1.5 | DKG2.2-2 |
| 6 | WZG80/6-2L | 4.8 6 6.4 | 83.2 80 61.6 | 10 15 30 | 25LG3-10×8 | 2 | 2.2 | Φ600×1.5 | DKG2.2-2 |
| 7 | WZG90/6-2L | 4.8 6 6.4 | 93.6 90 69.3 | 10 15 30 | 25LG3-10×9 | 2 | 2.2 | Φ600×1.5 | DKG2.2-2 |
| 8 | WZG100/6-2L | 4.8 6 6.4 | 104 100 77 | 10 15 30 | 25LG3-10×10 | 2 | 3 | Φ600×1.5 | DKG3-2 |
| 9 | WZG30/13-2L | 9 13 19 | 32.6 30 23 | 30 50 90 | 32LG6.5-15×2 | 2 | 1.5 | Φ600×1.5 | DKG1.5-2 |
| 10 | WZG45/13-2L | 9 13 19 | 48.9 45 34.5 | 30 50 90 | 32LG6.5-15×3 | 2 | 2.2 | Φ600×1.5 | DKG2.2-2 |
| 11 | WZG60/13-2L | 9 13 19 | 65.5 60 46 | 30 50 90 | 32LG6.5-15×4 | 2 | 3 | Φ600×1.5 | DKG3-2 |
| 12 | WZG75/13-2L | 9 13 19 | 81.5 75 57.5 | 30 50 90 | 32LG6.5-15×5 | 2 | 4 | Φ600×1.5 | DKG4-2 |
| 13 | WZG90/13-2L | 9 13 19 | 97.5 90 69 | 30 50 90 | 32LG6.5-15×6 | 2 | 4 | Φ600×1.5 | DKG4-2 |
| 14 | WZG105/13-2L | 9 13 19 | 114.1 105 80.5 | 30 50 90 | 32LG6.5-15×7 | 2 | 5.5 | Φ600×1.5 | DKG5.5-2 |
| 15 | WZG120/13-2L | 9 13 19 | 130.4 126 92 | 30 50 90 | 32LG6.5-15×8 | 2 | 5.5 | Φ600×1.5 | DKG5.5-2 |
| 16 | WZG30/24-2L | 18 24 36 | 32 30 24 | 90 140 250 | 40LG12-15×2 | 2 | 2.2 | Φ800×2.0 | DKG2.2-2 |
| 17 | WZG45/24-2L | 18 24 36 | 48 45 36 | 90 140 250 | 40LG12-15×3 | 2 | 3 | Φ800×2.0 | DKG3-2 |
| 18 | WZG60/24-2L | 18 24 36 | 64 60 48 | 90 140 250 | 40LG12-15×4 | 2 | 4 | Φ800×2.0 | DKG4-2 |
| 19 | WZG75/24-2L | 18 24 36 | 80 75 60 | 90 140 250 | 40LG12-15×5 | 2 | 5.5 | Φ800×2.0 | DKG5.5-2 |
| 20 | WZG90/24-2L | 18 24 36 | 96 90 72 | 90 140 250 | 40LG12-15×6 | 2 | 5.5 | Φ800×2.0 | DKG5.5-2 |
| 21 | WZG105/24-2L | 18 24 36 | 112 105 80 | 90 140 250 | 40LG12-15×7 | 2 | 7.5 | Φ800×2.0 | DKG7.5-2 |
| 22 | WZG120/24-2L | 18 24 36 | 128 120 96 | 90 140 250 | 40LG12-15×8 | 2 | 7.5 | Φ800×2.0 | DKG7.5-2 |
| 23 | WZG40/48-2L | 36 48 60 | 44 40 33 | 250 350 500 | 50LG24-20×2 | 2 | 5.5 | Φ1000×2.2 | DKG5.5-2 |
| 24 | WZG60/48-2L | 36 48 60 | 66 60 49.5 | 250 350 500 | 50LG24-20×3 | 2 | 7.5 | Φ1000×2.2 | DKG7.5-2 |
| 25 | WZG80/48-2L | 36 48 60 | 88 80 66 | 250 350 500 | 50LG24-20×4 | 2 | 11 | Φ1000×2.2 | DKG11-2 |
| 26 | WZG100/48-2L | 36 48 60 | 110 100 82.5 | 250 350 500 | 50LG24-20×5 | 2 | 11 | Φ1000×2.2 | DKG11-2 |
| 27 | WZG120/48-2L | 36 48 60 | 132 120 99 | 250 350 500 | 50LG24-20×6 | 2 | 15 | Φ1000×2.2 | DKG15-2 |
| 28 | WZG40/72-2L | 54 72 86.4 | 45.5 40 34 | 400 650 800 | 65LG36-20×2 | 2 | 7.5 | Φ1200×2.6 | DKG7.5-2 |
| 29 | WZG60/72-2L | 54 72 86.4 | 68.2 60 51 | 400 650 800 | 65LG36-20×3 | 2 | 11 | Φ1200×2.6 | DKG11-2 |
| 30 | WZG80/72-2L | 54 72 86.4 | 91 80 68 | 400 650 800 | 65LG36-20×4 | 2 | 15 | Φ1200×2.6 | DKG15-2 |
| 31 | WZG100/72-2L | 54 72 86.4 | 113.7 100 85 | 400 650 800 | 65LG36-20×5 | 2 | 18.5 | Φ1200×2.6 | DKG18.5-2 |
| 32 | WZG120/72-2L | 54 72 86.4 | 136.5 120 102 | 400 650 800 | 65LG36-20×6 | 2 | 22 | Φ1200×2.6 | DKG22-2 |
| 33 | WZG40/100-2L | 80 100 136.8 | 43.6 40 31.7 | 750 1000 1400 | 80LG50-20×2 | 2 | 11 | Φ1400×3.1 | DKG11-2 |
| 34 | WZG60/100-2L | 80 100 136.8 | 65.4 60 47.5 | 750 1000 1400 | 80LG50-20×3 | 2 | 15 | Φ1400×3.1 | DKG15-2 |
| 35 | WZG80/100-2L | 80 100 136.8 | 87.2 80 63.4 | 750 1000 1400 | 80LG50-20×4 | 2 | 18.5 | Φ1400×3.1 | DKG18.5-2 |
| 36 | WZG100/100-2L | 80 100 136.8 | 109 100 79.2 | 750 1000 1400 | 80LG50-20×5 | 2 | 22 | Φ1400×3.1 | DKG22-2 |
| 37 | WZG33/8-2G | 5.6 8 9.6 | 36 33 28.5 | 10 25 30 | 25GDL4-11×3 | 2 | 1.1 | Φ600×1.5 | DKG1.1-2 |
| 38 | WZG44/8-2G | 5.6 8 9.6 | 48 44 38 | 10 25 30 | 25GDL4-11×4 | 2 | 1.5 | Φ600×1.5 | DKG1.5-2 |
| 39 | WZG55/8-2G | 5.6 8 9.6 | 60 55 47.5 | 10 25 30 | 25GDL4-11×5 | 2 | 2.2 | Φ600×1.5 | DKG2.2-2 |
| 40 | WZG66/8-2G | 5.6 8 9.6 | 72 66 57 | 10 25 30 | 25GDL4-11×6 | 2 | 2.2 | Φ600×1.5 | DKG2.2-2 |
| 41 | WZG77/8-2G | 5.6 8 9.6 | 84 77 66.5 | 10 25 30 | 25GDL4-11×7 | 2 | 3 | Φ600×1.5 | DKG3-2 |
| 42 | WZG88/8-2G | 5.6 8 9.6 | 96 88 76 | 10 25 30 | 25GDL4-11×8 | 2 | 3 | Φ600×1.5 | DKG3-2 |
| 43 | WZG99/8-2G | 5.6 8 9.6 | 108 99 85.5 | 10 25 30 | 25GDL4-11×9 | 2 | 3 | Φ600×1.5 | DKG3-2 |
| 44 | WZG110/8-2G | 5.6 8 9.6 | 120 110 95 | 10 25 30 | 25GDL4-11×10 | 2 | 4 | Φ600×1.5 | DKG4-2 |
| 45 | WZG121/8-2G | 5.6 8 9.6 | 132 121 104.5 | 10 25 30 | 25GDL4-11×11 | 2 | 4 | Φ600×1.5 | DKG4-2 |
| 46 | WZG132/8-2G | 5.6 8 9.6 | 144 132 114 | 10 25 30 | 25GDL4-11×12 | 2 | 4 | Φ600×1.5 | DKG4-2 |
| 47 | WZG36/12-2G | 84 12 14.4 | 41 36 30.5 | 28 50 90 | 40GDL6-12×3 | 2 | 1.5 | Φ600×1.5 | DKG1.5-2 |
| 48 | WZG48/12-2G | 84 12 14.4 | 54 48 40.6 | 28 50 90 | 40GDL6-12×4 | 2 | 2.2 | Φ600×1.5 | DKG2.2-2 |
| 49 | WZG60/12-2G | 84 12 14.4 | 68 60 51 | 28 50 90 | 40GDL6-12×5 | 2 | 2.2 | Φ600×1.5 | DKG2.2-2 |
| 50 | WZG72/12-2G | 84 12 14.4 | 82 72 61 | 28 50 90 | 40GDL6-12×6 | 2 | 3 | Φ600×1.5 | DKG3-2 |
| 51 | WZG84/12-2G | 84 12 14.4 | 95 84 71 | 28 50 90 | 40GDL6-12×7 | 2 | 3 | Φ600×1.5 | DKG3-2 |
| 52 | WZG96/12-2G | 84 12 14.4 | 109 96 81 | 28 50 90 | 40GDL6-12×8 | 2 | 4 | Φ600×1.5 | DKG4-2 |
| 53 | WZG108/12-2G | 84 12 14.4 | 123 108 91 | 28 50 90 | 40GDL6-12×9 | 2 | 4 | Φ600×1.5 | DKG4-2 |
| 54 | WZG120/12-2G | 84 12 14.4 | 136 120 102 | 28 50 90 | 40GDL6-12×10 | 2 | 4 | Φ600×1.5 | DKG4-2 |
| 55 | WZG132/12-2G | 84 12 14.4 | 150 132 112 | 28 50 90 | 40GDL6-12×11 | 2 | 5.5 | Φ600×1.5 | DKG5.5-2 |
| 56 | WZG144/12-2G | 84 12 14.4 | 164 144 122 | 28 50 90 | 40GDL6-12×12 | 2 | 5.5 | Φ600×1.5 | DKG5.5-2 |
| 57 | WZG30/24-2G | 16.8 24 28.8 | 36 30 24 | 90 140 190 | 50GDL12-15×2 | 2 | 2.2 | Φ800×2.0 | DKG2.2-2 |
| 58 | WZG45/24-2G | 16.8 24 28.8 | 54 45 36 | 90 140 190 | 50GDL12-15×3 | 2 | 3 | Φ800×2.0 | DKG3-2 |
| 59 | WZG60/24-2G | 16.8 24 28.8 | 72 60 48 | 90 140 190 | 50GDL12-15×4 | 2 | 4 | Φ800×2.0 | DKG4-2 |
| 60 | WZG75/24-2G | 16.8 24 28.8 | 90 75 60 | 90 140 190 | 50GDL12-15×5 | 2 | 5.5 | Φ800×2.0 | DKG5.5-2 |
| 61 | WZG90/24-2G | 16.8 24 28.8 | 108 90 72 | 90 140 190 | 50GDL12-15×6 | 2 | 5.5 | Φ800×2.0 | DKG5.5-2 |
| 62 | WZG105/24-2G | 16.8 24 28.8 | 126 105 84 | 90 140 190 | 50GDL12-15×7 | 2 | 7.5 | Φ800×2.0 | DKG7.5-2 |
| 63 | WZG120/24-2G | 16.8 24 28.8 | 144 120 96 | 90 140 190 | 50GDL12-15×8 | 2 | 7.5 | Φ800×2.0 | DKG7.5-2 |
| 64 | WZG135/24-2G | 16.8 24 28.8 | 162 135 108 | 90 140 190 | 50GDL12-15×9 | 2 | 11 | Φ800×2.0 | DKG11-2 |
| 65 | WZG150/24-2G | 16.8 24 28.8 | 180 150 120 | 90 140 190 | 50GDL12-15×10 | 2 | 11 | Φ800×2.0 | DKG11-2 |
| 66 | WZG30/36-2G | 25.2 36 43.2 | 36 30 25 | 140 250 300 | 50GDL18-15×2 | 2 | 3 | Φ800×2.0 | DKG3-2 |
| 67 | WZG45/36-2G | 25.2 36 43.2 | 54 45 37.5 | 140 250 300 | 50GDL18-15×3 | 2 | 4 | Φ800×2.0 | DKG4-2 |
| 68 | WZG60/36-2G | 25.2 36 43.2 | 72 60 50 | 140 250 300 | 50GDL18-15×4 | 2 | 5.5 | Φ800×2.0 | DKG5.5-2 |
| 69 | WZG75/36-2G | 25.2 36 43.2 | 90 75 62.5 | 140 250 300 | 50GDL18-15×5 | 2 | 7.5 | Φ800×2.0 | DKG7.5-2 |
| 70 | WZG90/36-2G | 25.2 36 43.2 | 108 90 75 | 140 250 300 | 50GDL18-15×6 | 2 | 7.5 | Φ800×2.0 | DKG7.5-2 |
| 71 | WZG105/36-2G | 25.2 36 43.2 | 126 105 82.5 | 140 250 300 | 50GDL18-15×7 | 2 | 11 | Φ800×2.0 | DKG11-2 |
| 72 | WZG120/36-2G | 25.2 36 43.2 | 144 120 100 | 140 250 300 | 50GDL18-15×8 | 2 | 11 | Φ800×2.0 | DKG11-2 |
| 73 | WZG135/36-2G | 25.2 36 43.2 | 162 135 112.5 | 140 250 300 | 50GDL18-15×9 | 2 | 15 | Φ800×2.0 | DKG15-2 |
| 74 | WZG150/36-2G | 25.2 36 43.2 | 180 150 125 | 140 250 300 | 50GDL18-15×10 | 2 | 15 | Φ800×2.0 | DKG15-2 |
| 75 | WZG24/48-2G | 33.6 48 57.6 | 27 24 22 | 250 350 500 | 65GDL24-12×2 | 2 | 3 | Φ1000×2.2 | DKG3-2 |
| 76 | WZG36/48-2G | 33.6 48 57.6 | 40.5 36 33 | 250 350 500 | 65GDL24-12×3 | 2 | 4 | Φ1000×2.2 | DKG4-2 |
| 77 | WZG48/48-2G | 33.6 48 57.6 | 54 48 44 | 250 350 500 | 65GDL24-12×4 | 2 | 5.5 | Φ1000×2.2 | DKG5.5-2 |
| 78 | WZG60/48-2G | 33.6 48 57.6 | 67.5 60 55 | 250 350 500 | 65GDL24-12×5 | 2 | 7.5 | Φ1000×2.2 | DKG7.5-2 |
| 79 | WZG72/48-2G | 33.6 48 57.6 | 81 72 66 | 250 350 500 | 65GDL24-12×6 | 2 | 7.5 | Φ1000×2.2 | DKG7.5-2 |
| 80 | WZG84/48-2G | 33.6 48 57.6 | 94.5 84 77 | 250 350 500 | 65GDL24-12×7 | 2 | 11 | Φ1000×2.2 | DKG11-2 |
| 81 | WZG96/48-2G | 33.6 48 57.6 | 108 96 88 | 250 350 500 | 65GDL24-12×8 | 2 | 11 | Φ1000×2.2 | DKG11-2 |
| 82 | WZG108/48-2G | 33.6 48 57.6 | 121.5 108 99 | 250 350 500 | 65GDL24-12×9 | 2 | 15 | Φ1000×2.2 | DKG15-2 |
| 83 | WZG120/48-2G | 33.6 48 57.6 | 135 120 110 | 250 350 500 | 65GDL24-12×10 | 2 | 15 | Φ1000×2.2 | DKG15-2 |
| 84 | WZG24/72-2G | 50.4 72 86.4 | 27 24 21 | 400 650 800 | 80GDL36-12×2 | 2 | 4 | Φ1200×2.6 | DKG4-2 |
| 85 | WZG36/72-2G | 50.4 72 86.4 | 40.5 36 31.5 | 400 650 800 | 80GDL36-12×3 | 2 | 55 | Φ1200×2.6 | DKG5.5-2 |
| 86 | WZG48/72-2G | 50.4 72 86.4 | 54 48 42 | 400 650 800 | 80GDL36-12×4 | 2 | 75 | Φ1200×2.6 | DKG7.5-2 |
| 87 | WZG60/72-2G | 50.4 72 86.4 | 67.5 60 52.5 | 400 650 800 | 80GDL36-12×5 | 2 | 11 | Φ1200×2.6 | DKG11-2 |
| 88 | WZG72/72-2G | 50.4 72 86.4 | 81 72 63 | 400 650 800 | 80GDL36-12×6 | 2 | 11 | Φ1200×2.6 | DKG11-2 |
| 89 | WZG84/72-2G | 50.4 72 86.4 | 94.5 84 73.5 | 400 650 800 | 80GDL36-12×7 | 2 | 15 | Φ1200×2.6 | DKG15-2 |
| 90 | WZG96/72-2G | 50.4 72 86.4 | 108 96 84 | 400 650 800 | 80GDL36-12×8 | 2 | 15 | Φ1200×2.6 | DKG15-2 |
| 91 | WZG108/72-2G | 50.4 72 86.4 | 121.5 108 94.5 | 400 650 800 | 80GDL36-12×9 | 2 | 18.5 | Φ1200×2.6 | DKG18.5-2 |
| 92 | WZG120/72-2G | 50.4 72 86.4 | 135 120 115 | 400 650 800 | 80GDL36-12×10 | 2 | 18.5 | Φ1200×2.6 | DKG18.5-2 |
| 93 | WZG28/108-2G | 75.6 108 129.6 | 32 28 25 | 750 1000 1400 | 80GDL54-14×2 | 2 | 7.5 | Φ1400×3.1 | DKG7.5-2 |
| 94 | WZG42/108-2G | 75.6 108 129.6 | 48 42 37.5 | 750 1000 1400 | 80GDL54-14×3 | 2 | 11 | Φ1400×3.1 | DKG11-2 |
| 95 | WZG56/108-2G | 75.6 108 129.6 | 64 56 50 | 750 1000 1400 | 80GDL54-14×4 | 2 | 15 | Φ1400×3.1 | DKG15-2 |
| 96 | WZG70/108-2G | 75.6 108 129.6 | 80 70 62.5 | 750 1000 1400 | 80GDL54-14×5 | 2 | 18.5 | Φ1400×3.1 | DKG18.5-2 |
| 97 | WZG84/108-2G | 75.6 108 129.6 | 96 84 75 | 750 1000 1400 | 80GDL54-14×6 | 2 | 18.5 | Φ1400×3.1 | DKG18.5-2 |
| 98 | WZG98/108-2G | 75.6 108 129.6 | 112 98 87.5 | 750 1000 1400 | 80GDL54-14×7 | 2 | 22 | Φ1400×3.1 | DKG22-2 |
| 99 | WZG112/108-2G | 75.6 108 129.6 | 128 112 100 | 750 1000 1400 | 80GDL54-14×8 | 2 | 30 | Φ1400×3.1 | DKG30-2 |
| 100 | WZG126/108-2G | 75.6 108 129.6 | 144 126 112.5 | 750 1000 1400 | 80GDL54-14×9 | 2 | 30 | Φ1400×3.1 | DKG30-2 |
| 101 | WZG140/108-2G | 75.6 108 129.6 | 160 140 125 | 750 1000 1400 | 80GDL54-14×10 | 2 | 37 | Φ1400×3.1 | DKG37-2 |
| 102 | WZG28/144-2G | 100.8 144 172.8 | 32 28 24 | 1200 1600 2000 | 100GDL72-14×2 | 2 | 11 | Φ1600×3.2 | DKG11-2 |
| 103 | WZG42/144-2G | 100.8 144 172.8 | 48 42 36 | 1200 1600 2000 | 100GDL72-14×3 | 2 | 15 | Φ1600×3.2 | DKG15-2 |
| 104 | WZG56/144-2G | 100.8 144 172.8 | 64 56 48 | 1200 1600 2000 | 100GDL72-14×4 | 2 | 18.5 | Φ1600×3.2 | DKG18.5-2 |
| 105 | WZG70/144-2G | 100.8 144 172.8 | 80 70 60 | 1200 1600 2000 | 100GDL72-14×5 | 2 | 22 | Φ1600×3.2 | DKG22-2 |
| 106 | WZG84/144-2G | 100.8 144 172.8 | 96 84 72 | 1200 1600 2000 | 100GDL72-14×6 | 2 | 30 | Φ1600×3.2 | DKG30-2 |
| 107 | WZG98/144-2G | 100.8 144 172.8 | 112 98 84 | 1200 1600 2000 | 100GDL72-14×7 | 2 | 30 | Φ1600×3.2 | DKG30-2 |
| 108 | WZG112/144-2G | 100.8 144 172.8 | 128 112 96 | 1200 1600 2000 | 100GDL72-14×8 | 2 | 37 | Φ1600×3.2 | DKG37-2 |
| 109 | WZG126/144-2G | 100.8 144 172.8 | 144 126 108 | 1200 1600 2000 | 100GDL72-14×9 | 2 | 37 | Φ1600×3.2 | DKG37-2 |
| 110 | WZG140/144-2G | 100.8 144 172.8 | 160 140 120 | 1200 1600 2000 | 100GDL72-14×10 | 2 | 45 | Φ1600×3.2 | DKG45-2 |
| 111 | WZG24/12-2D | 8.4 12 14.4 | 26 24 22 | 28 50 90 | 40DL6-12×2 | 2 | 1.5 | Φ600×1.5 | DKG1.5-2 |
| 112 | WZG36/12-2D | 8.4 12 14.4 | 39 36 33 | 28 50 90 | 40DL6-12×3 | 2 | 2.2 | Φ600×1.5 | DKG2.2-2 |
| 113 | WZG48/12-2D | 8.4 12 14.4 | 52 48 44 | 28 50 90 | 40DL6-12×4 | 2 | 3 | Φ600×1.5 | DKG3-2 |
| 114 | WZG60/12-2D | 8.4 12 14.4 | 65 60 55 | 28 50 90 | 40DL6-12×5 | 2 | 4 | Φ600×1.5 | DKG4-2 |
| 115 | WZG72/12-2D | 8.4 12 14.4 | 78 72 66 | 28 50 90 | 40DL6-12×6 | 2 | 4 | Φ600×1.5 | DKG4-2 |
| 116 | WZG84/12-2D | 8.4 12 14.4 | 91 84 77 | 28 50 90 | 40DL6-12×7 | 2 | 5.5 | Φ600×1.5 | DKG5.5-2 |
| 117 | WZG96/12-2D | 8.4 12 14.4 | 104 96 88 | 28 50 90 | 40DL6-12×8 | 2 | 5.5 | Φ600×1.5 | DKG5.5-2 |
| 118 | WZG108/12-2D | 8.4 12 14.4 | 117 108 99 | 28 50 90 | 40DL6-12×9 | 2 | 7.5 | Φ600×1.5 | DKG7.5-2 |
| 119 | WZG120/12-2D | 8.4 12 14.4 | 130 120 110 | 28 50 90 | 40DL6-12×10 | 2 | 7.5 | Φ600×1.5 | DKG7.5-2 |
| 120 | WZG132/12-2D | 8.4 12 14.4 | 143 132 121 | 28 50 90 | 40DL6-12×11 | 2 | 7.5 | Φ600×1.5 | DKG7.5-2 |
| 121 | WZG144/12-2D | 8.4 12 14.4 | 156 144 132 | 28 50 90 | 40DL6-12×12 | 2 | 11 | Φ600×1.5 | DKG11-2 |
| 122 | WZG25/25-2D | 18 25 36 | 27 25 22 | 90 140 190 | 50DL12-12.5×2 | 2 | 3 | Φ800×2.0 | DKG3-2 |
| 123 | WZG38/25-2D | 18 25 36 | 40.5 37.5 33 | 90 140 190 | 50DL12-12.5×3 | 2 | 3 | Φ800×2.0 | DKG3-2 |
| 124 | WZG50/25-2D | 18 25 36 | 54 50 44 | 90 140 190 | 50DL12-12.5×4 | 2 | 4 | Φ800×2.0 | DKG4-2 |
| 125 | WZG62/25-2D | 18 25 36 | 67.5 62.5 55 | 90 140 190 | 50DL12-12.5×5 | 2 | 5.5 | Φ800×2.0 | DKG5.5-2 |
| 126 | WZG75/25-2D | 18 25 36 | 81 75 66 | 90 140 190 | 50DL12-12.5×6 | 2 | 5.5 | Φ800×2.0 | DKG5.5-2 |
| 127 | WZG88/25-2D | 18 25 36 | 94.5 87.5 77 | 90 140 190 | 50DL12-12.5×7 | 2 | 7.5 | Φ800×2.0 | DKG7.5-2 |
| 128 | WZG100/25-2D | 18 25 36 | 108 100 88 | 90 140 190 | 50DL12-12.5×8 | 2 | 7.5 | Φ800×2.0 | DKG7.5-2 |
| 129 | WZG112/25-2D | 18 25 36 | 121.5 112.5 99 | 90 140 190 | 50DL12-12.5×9 | 2 | 11 | Φ800×2.0 | DKG11-2 |
| 130 | WZG125/25-2D | 18 25 36 | 135 125 110 | 90 140 190 | 50DL12-12.5×10 | 2 | 11 | Φ800×2.0 | DKG11-2 |
| 131 | WZG30/60-2D | 36 60 72 | 33 30 26 | 350 500 650 | 65DL30-15×2 | 2 | 5.5 | Φ1000×2.2 | DKG5.5-2 |
| 132 | WZG45/60-2D | 36 60 72 | 49.5 45 39 | 350 500 650 | 65DL30-15×3 | 2 | 7.5 | Φ1000×2.2 | DKG7.5-2 |
| 133 | WZG60/60-2D | 36 60 72 | 66 60 52 | 350 500 650 | 65DL30-15×4 | 2 | 11 | Φ1000×2.2 | DKG11-2 |
| 134 | WZG75/60-2D | 36 60 72 | 82.5 75 65 | 350 500 650 | 65DL30-15×5 | 2 | 11 | Φ1000×2.2 | DKG11-2 |
| 135 | WZG90/60-2D | 36 60 72 | 99 90 78 | 350 500 650 | 65DL30-15×6 | 2 | 15 | Φ1000×2.2 | DKG15-2 |
| 136 | WZG105/60-2D | 36 60 72 | 115.5 105 91 | 350 500 650 | 65DL30-15×7 | 2 | 15 | Φ1000×2.2 | DKG15-2 |
| 137 | WZG120/60-2D | 36 60 72 | 132 120 104 | 350 500 650 | 65DL30-15×8 | 2 | 18.5 | Φ1000×2.2 | DKG18.5-2 |
| 138 | WZG135/60-2D | 36 60 72 | 148.5 135 117 | 350 500 650 | 65DL30-15×9 | 2 | 22 | Φ1000×2.2 | DKG22-2 |
| 139 | WZG150/60-2D | 36 60 72 | 165 150 130 | 350 500 650 | 65DL30-15×10 | 2 | 22 | Φ1000×2.2 | DKG22-2 |
| 140 | WZG40/108-2D | 64.8 108 130 | 42 40 36 | 750 1000 1400 | 80DL54-20×2 | 2 | 11 | Φ1400×3.1 | DKG11-2 |
| 141 | WZG60/108-2D | 64.8 108 130 | 63 60 54 | 750 1000 1400 | 80DL54-20×3 | 2 | 15 | Φ1400×3.1 | DKG15-2 |
| 142 | WZG80/108-2D | 64.8 108 130 | 84 80 72 | 750 1000 1400 | 80DL54-20×4 | 2 | 22 | Φ1400×3.1 | DKG22-2 |
| 143 | WZG100/108-2D | 64.8 108 130 | 105 100 90 | 750 1000 1400 | 80DL54-20×5 | 2 | 30 | Φ1400×3.1 | DKG30-2 |
| 144 | WZG120/108-2D | 64.8 108 130 | 126 120 108 | 750 1000 1400 | 80DL54-20×6 | 2 | 30 | Φ1400×3.1 | DKG30-2 |
| 145 | WZG140/108-2D | 64.8 108 130 | 147 140 126 | 750 1000 1400 | 80DL54-20×7 | 2 | 37 | Φ1400×3.1 | DKG37-2 |
| 146 | WZG160/108-2D | 64.8 108 130 | 168 160 144 | 750 1000 1400 | 80DL54-20×8 | 2 | 45 | Φ1400×3.1 | DKG45-2 |
| 147 | WZG180/108-2D | 64.8 108 130 | 189 180 162 | 750 1000 1400 | 80DL54-20×9 | 2 | 45 | Φ1400×3.1 | DKG45-2 |
| 148 | WZG200/108-2D | 64.8 108 130 | 210 200 180 | 750 1000 1400 | 80DL54-20×10 | 2 | 55 | Φ1400×3.1 | DKG55-2 |
| 149 | WZG40/144-2D | 100 144 180 | 45 40 36 | 1200 1600 2000 | 100DL72-20×2 | 2 | 18.5 | Φ1600×3.2 | DKG18.5-2 |
| 150 | WZG60/144-2D | 100 144 180 | 67.5 60 54 | 1200 1600 2000 | 100DL72-20×3 | 2 | 22 | Φ1600×3.2 | DKG22-2 |
| 151 | WZG80/144-2D | 100 144 180 | 90 80 72 | 1200 1600 2000 | 100DL72-20×4 | 2 | 30 | Φ1600×3.2 | DKG30-2 |
| 152 | WZG100/144-2D | 100 144 180 | 112.5 100 90 | 1200 1600 2000 | 100DL72-20×5 | 2 | 37 | Φ1600×3.2 | DKG37-2 |
| 153 | WZG120/144-2D | 100 144 180 | 135 120 106 | 1200 1600 2000 | 100DL72-20×6 | 2 | 45 | Φ1600×3.2 | DKG45-2 |
| 154 | WZG140/144-2D | 100 144 180 | 157.5 140 126 | 1200 1600 2000 | 100DL72-20×7 | 2 | 55 | Φ1600×3.2 | DKG55-2 |
| 155 | WZG160/144-2D | 100 144 180 | 180 160 144 | 1200 1600 2000 | 100DL72-20×8 | 2 | 55 | Φ1600×3.2 | DKG55-2 |
| 156 | WZG180/144-2D | 100 144 180 | 202.5 180 162 | 1200 1600 2000 | 100DL72-20×9 | 2 | 75 | Φ1600×3.2 | DKG75-2 |
| 157 | WZG200/144-2D | 100 144 180 | 225 200 180 | 1200 1600 2000 | 100DL72-20×10 | 2 | 75 | Φ1600×3.2 | DKG75-2 |
| 158 | WZG40/200-2D | 144 200 252 | 43.4 40 34 | 1500 2500 3000 | 100DL100-20×2 | 2 | 18.5 | Φ2000×3.5 | DKG18.5-2 |
| 159 | WZG60/200-2D | 144 200 252 | 65.1 60 51 | 1500 2500 3000 | 100DL100-20×3 | 2 | 30 | Φ2000×3.5 | DKG30-2 |
| 160 | WZG80/200-2D | 144 200 252 | 86.8 80 68 | 1500 2500 3000 | 100DL100-20×4 | 2 | 37 | Φ2000×3.5 | DKG37-2 |
| 161 | WZG100/200-2D | 144 200 252 | 108.5 100 85 | 1500 2500 3000 | 100DL100-20×5 | 2 | 45 | Φ2000×3.5 | DKG45-2 |
| 162 | WZG120/200-2D | 144 200 252 | 130.2 120 102 | 1500 2500 3000 | 100DL100-20×6 | 2 | 55 | Φ2000×3.5 | DKG55-2 |
| 163 | WZG140/200-2D | 144 200 252 | 151.9 140 119 | 1500 2500 3000 | 100DL100-20×7 | 2 | 75 | Φ2000×3.5 | DKG75-2 |
| 164 | WZG160/200-2D | 144 200 252 | 173.6 160 136 | 1500 2500 3000 | 100DL100-20×8 | 2 | 75 | Φ2000×3.5 | DKG75-2 |
| 165 | WZG180/200-2D | 144 200 252 | 195.3 180 153 | 1500 2500 3000 | 100DL100-20×9 | 2 | 90 | Φ2000×3.5 | DKG90-2 |
| 166 | WZG200/200-2D | 144 200 252 | 217 200 170 | 1500 2500 3000 | 100DL100-20×10 | 2 | 90 | Φ2000×3.5 | DKG90-2 |
| 167 | WZG30/9-3L | 7.2 9 14.1 | 31.2 30 23.1 | 20 30 50 | 25LG3-10×3 | 3 | 1.1 | Φ600×1.5 | DKG1.1-3 |
| 168 | WZG40/9-3L | 7.2 9 14.1 | 41.6 40 30.8 | 20 30 50 | 25LG3-10×4 | 3 | 1.5 | Φ600×1.5 | DKG1.5-3 |
| 169 | WZG50/9-3L | 7.2 9 14.1 | 52 50 38.5 | 20 30 50 | 25LG3-10×5 | 3 | 1.5 | Φ600×1.5 | DKG1.5-3 |
| 170 | WZG60/9-3L | 7.2 9 14.1 | 62.4 60 46.2 | 20 30 50 | 25LG3-10×6 | 3 | 2.2 | Φ600×1.5 | DKG2.2-3 |
| 171 | WZG70/9-3L | 7.2 9 14.1 | 72.8 70 53.9 | 20 30 50 | 25LG3-10×7 | 3 | 2.2 | Φ600×1.5 | DKG2.2-3 |
| 172 | WZG80/9-3L | 7.2 9 14.1 | 83.2 80 61.6 | 20 30 50 | 25LG3-10×8 | 3 | 2.2 | Φ600×1.5 | DKG2.2-3 |
| 173 | WZG90/9-3L | 7.2 9 14.1 | 93.6 90 69.3 | 20 30 50 | 25LG3-10×9 | 3 | 2.2 | Φ600×1.5 | DKG2.2-3 |
| 174 | WZG100/9-3L | 7.2 9 14.1 | 104 100 77 | 20 30 50 | 25LG3-10×10 | 3 | 3 | Φ600×1.5 | DKG3-3 |
| 175 | WZG30/20-3L | 13.5 19.5 28.5 | 32.6 30 23 | 90 140 250 | 32LG6.5-15×2 | 3 | 1.5 | Φ800×2.0 | DKG1.5-3 |
| 176 | WZG45/20-3L | 13.5 19.5 28.5 | 48.9 45 34.5 | 90 140 250 | 32LG6.5-15×3 | 3 | 2.2 | Φ800×2.0 | DKG2.2-3 |
| 177 | WZG60/20-3L | 13.5 19.5 28.5 | 65.5 60 46 | 90 140 250 | 32LG6.5-15×4 | 3 | 3 | Φ800×2.0 | DKG3-3 |
| 178 | WZG75/20-3L | 13.5 19.5 28.5 | 81.5 75 57.5 | 90 140 250 | 32LG6.5-15×5 | 3 | 4 | Φ800×2.0 | DKG4-3 |
| 179 | WZG90/20-3L | 13.5 19.5 28.5 | 97.8 90 69 | 90 140 250 | 32LG6.5-15×6 | 3 | 4 | Φ800×2.0 | DKG4-3 |
| 180 | WZG105/20-3L | 13.5 19.5 28.5 | 114.1 105 80.5 | 90 140 250 | 32LG6.5-15×7 | 3 | 5.5 | Φ800×2.0 | DKG5.5-3 |
| 181 | WZG120/20-3L | 13.5 19.5 28.5 | 130.4 120 92 | 90 140 250 | 32LG6.5-15×8 | 3 | 5.5 | Φ800×2.0 | DKG5.5-3 |
| 182 | WZG30/36-3L | 27 36 54 | 32 30 24 | 140 250 300 | 40LG12-15×2 | 3 | 22 | Φ800×2.0 | DKG22-3 |
| 183 | WZG45/36-3L | 27 36 54 | 48 45 36 | 140 250 300 | 40LG12-15×3 | 3 | 3 | Φ800×2.0 | DKG3-3 |
| 184 | WZG60/36-3L | 27 36 54 | 64 60 48 | 140 250 300 | 40LG12-15×4 | 3 | 4 | Φ800×2.0 | DKG4-3 |
| 185 | WZG75/36-3L | 27 36 54 | 80 75 60 | 140 250 300 | 40LG12-15×5 | 3 | 55 | Φ800×2.0 | DKG55-3 |
| 186 | WZG90/36-3L | 27 36 54 | 96 90 72 | 140 250 300 | 40LG12-15×6 | 3 | 5.5 | Φ800×2.0 | DKG5.5-3 |
| 187 | WZG105/36-3L | 27 36 54 | 112 105 80 | 140 250 300 | 40LG12-15×7 | 3 | 7.5 | Φ800×2.0 | DKG7.5-3 |
| 188 | WZG120/36-3L | 27 36 54 | 128 120 96 | 140 250 300 | 40LG12-15×8 | 3 | 7.5 | Φ800×2.0 | DKG7.5-3 |
| 189 | WZG40/72-3L | 54 72 90 | 44 40 33 | 400 650 850 | 50LG24-20×2 | 3 | 5.5 | Φ1200×2.6 | DKG5.5-3 |
| 190 | WZG60/72-3L | 54 72 90 | 66 60 49.5 | 400 650 850 | 50LG24-20×3 | 3 | 7.5 | Φ1200×2.6 | DKG7.5-3 |
| 191 | WZG80/72-3L | 54 72 90 | 88 80 66 | 400 650 850 | 50LG24-20×4 | 3 | 11 | Φ1200×2.6 | DKG11-3 |
| 192 | WZG100/72-3L | 54 72 90 | 110 100 82.5 | 400 650 850 | 50LG24-20×5 | 3 | 11 | Φ1200×2.6 | DKG11-3 |
| 193 | WZG120/72-3L | 54 72 90 | 132 120 99 | 400 650 850 | 50LG24-20×6 | 3 | 15 | Φ1200×2.6 | DKG15-3 |
| 194 | WZG40/108-3L | 81 108 129.6 | 45.5 40 34 | 400 650 850 | 65LG36-20×2 | 3 | 7.5 | Φ1400×3.1 | DKG7.5-3 |
| 195 | WZG60/108-3L | 81 108 129.6 | 68.2 60 51 | 400 650 850 | 65LG36-20×3 | 3 | 11 | Φ1400×3.1 | DKG11-3 |
| 196 | WZG80/108-3L | 81 108 129.6 | 91 80 68 | 400 650 850 | 65LG36-20×4 | 3 | 15 | Φ1400×3.1 | DKG15-3 |
| 197 | WZG100/108-3L | 81 108 129.6 | 113.7 100 85 | 400 650 800 | 65LG36-20×5 | 3 | 18.5 | Φ1400×3.1 | DKG18.5-3 |
| 198 | WZG120/108-3L | 81 108 129.6 | 136.5 120 102 | 400 650 800 | 65LG36-20×6 | 3 | 22 | Φ1400×3.1 | DKG22-3 |
| 199 | WZG40/150-3L | 120 150 205.2 | 43.6 40 31.7 | 1300 1600 2200 | 80LG50-20×2 | 3 | 11 | Φ1600×3.2 | DKG11-3 |
| 200 | WZG60/150-3L | 120 150 205.2 | 65.4 60 47.5 | 1300 1600 2200 | 80LG50-20×3 | 3 | 15 | Φ1600×3.2 | DKG15-3 |
| 201 | WZG80/150-3L | 120 150 205.2 | 87.2 80 63.4 | 1300 1600 2200 | 80LG50-20×4 | 3 | 18.5 | Φ1600×3.2 | DKG18.5-3 |
| 202 | WZG100/150-3L | 120 150 205.2 | 109 100 79.2 | 1300 1600 2200 | 80LG50-20×5 | 3 | 22 | Φ1600×3.2 | DKG22-3 |
| 203 | WZG33/12-3G | 8.4 12 14.4 | 36 33 28.5 | 30 50 90 | 25GDL4-11×3 | 3 | 1.1 | Φ600×1.5 | DKG1.1-3 |
| 204 | WZG44/12-3G | 8.4 12 14.4 | 48 44 38 | 30 50 90 | 25GDL4-11×4 | 3 | 1.5 | Φ600×1.5 | DKG1.5-3 |
| 205 | WZG55/12-3G | 8.4 12 14.4 | 60 55 47.5 | 30 50 90 | 25GDL4-11×5 | 3 | 2.2 | Φ600×1.5 | DKG2.2-3 |
| 206 | WZG66/12-3G | 8.4 12 14.4 | 72 66 57 | 30 50 90 | 25GDL4-11×6 | 3 | 2.2 | Φ600×1.5 | DKG2.2-3 |
| 207 | WZG77/12-3G | 8.4 12 14.4 | 84 77 66.5 | 30 50 90 | 25GDL4-11×7 | 3 | 3 | Φ600×1.5 | DKG3-3 |
| 208 | WZG88/12-3G | 8.4 12 14.4 | 96 88 76 | 30 50 90 | 25GDL4-11×8 | 3 | 3 | Φ600×1.5 | DKG3-3 |
| 209 | WZG99/12-3G | 8.4 12 14.4 | 108 99 85.5 | 30 50 90 | 25GDL4-11×9 | 3 | 3 | Φ600×1.5 | DKG3-3 |
| 210 | WZG110/12-3G | 8.4 12 14.4 | 120 110 95 | 30 50 90 | 25GDL4-11×10 | 3 | 4 | Φ600×1.5 | DKG4-3 |
| 211 | WZG121/12-3G | 8.4 12 14.4 | 132 121 104.5 | 30 50 90 | 25GDL4-11×11 | 3 | 4 | Φ600×1.5 | DKG4-3 |
| 212 | WZG132/12-3G | 8.4 12 14.4 | 144 132 114 | 30 50 90 | 25GDL4-11×12 | 3 | 4 | Φ600×1.5 | DKG4-3 |
| 213 | WZG36/18-3G | 12.6 18 21.6 | 41 36 30.5 | 60 100 150 | 40GDL6-12×3 | 3 | 1.5 | Φ800×2.0 | DKG1.5-3 |
| 214 | WZG48/18-3G | 12.6 18 21.6 | 54 48 40.6 | 60 100 150 | 40GDL6-12×4 | 3 | 2.2 | Φ800×2.0 | DKG2.2-3 |
| 215 | WZG60/18-3G | 12.6 18 21.6 | 68 60 51 | 60 100 150 | 40GDL6-12×5 | 3 | 2.2 | Φ800×2.0 | DKG2.2-3 |
| 216 | WZG72/18-3G | 12.6 18 21.6 | 82 72 61 | 60 100 150 | 40GDL6-12×6 | 3 | 3 | Φ800×2.0 | DKG3-3 |
| 217 | WZG84/18-3G | 12.6 18 21.6 | 95 84 71 | 60 100 150 | 40GDL6-12×7 | 3 | 3 | Φ800×2.0 | DKG3-3 |
| 218 | WZG96/18-3G | 12.6 18 21.6 | 109 96 81 | 60 100 150 | 40GDL6-12×8 | 3 | 4 | Φ800×2.0 | DKG4-3 |
| 219 | WZG108/18-3G | 12.6 18 21.6 | 123 108 91 | 60 100 150 | 40GDL6-12×9 | 3 | 4 | Φ800×2.0 | DKG4-3 |
| 220 | WZG120/18-3G | 12.6 18 21.6 | 136 120 102 | 60 100 150 | 40GDL6-12×10 | 3 | 4 | Φ800×2.0 | DKG4-3 |
| 221 | WZG132/18-3G | 12.6 18 21.6 | 150 132 112 | 60 100 150 | 40GDL6-12×11 | 3 | 5.5 | Φ800×2.0 | DKG5.5-3 |
| 222 | WZG144/18-3G | 12.6 18 21.6 | 164 144 122 | 60 100 150 | 40GDL6-12×12 | 3 | 5.5 | Φ800×2.0 | DKG5.5-3 |
| 223 | WZG30/36-3G | 25.2 36 43.2 | 36 30 24 | 140 250 300 | 50GDL12-15×2 | 3 | 2.2 | Φ800×2.0 | DKG2.2-3 |
| 224 | WZG45/36-3G | 25.2 36 43.2 | 54 45 36 | 140 250 300 | 50GDL12-15×3 | 3 | 3 | Φ800×2.0 | DKG3-3 |
| 225 | WZG60/36-3G | 25.2 36 43.2 | 72 60 48 | 140 250 300 | 50GDL12-15×4 | 3 | 4 | Φ800×2.0 | DKG4-3 |
| 226 | WZG75/36-3G | 25.2 36 43.2 | 90 75 60 | 140 250 300 | 50GDL12-15×5 | 3 | 5.5 | Φ800×2.0 | DKG5.5-3 |
| 227 | WZG90/36-3G | 25.2 36 43.2 | 108 90 72 | 140 250 300 | 50GDL12-15×6 | 3 | 5.5 | Φ800×2.0 | DKG5.5-3 |
| 228 | WZG105/36-3G | 25.2 36 43.2 | 126 105 84 | 140 250 300 | 50GDL12-15×7 | 3 | 7.5 | Φ800×2.0 | DKG7.5-3 |
| 229 | WZG120/36-3G | 25.2 36 43.2 | 144 120 96 | 140 250 300 | 50GDL12-15×8 | 3 | 7.5 | Φ800×2.0 | DKG7.5-3 |
| 230 | WZG135/36-3G | 25.2 36 43.2 | 162 135 108 | 140 250 300 | 50GDL12-15×9 | 3 | 11 | Φ800×2.0 | DKG11-3 |
| 231 | WZG150/36-3G | 25.2 36 43.2 | 180 150 120 | 140 250 300 | 50GDL12-15×10 | 3 | 11 | Φ800×2.0 | DKG11-3 |
| 232 | WZG30/54-3G | 37.8 54 64.8 | 36 30 25 | 250 350 500 | 50GDL18-15×2 | 3 | 3 | Φ1000×2.2 | DKG3-3 |
| 233 | WZG45/54-3G | 37.8 54 64.8 | 54 45 37.5 | 250 350 500 | 50GDL18-15×3 | 3 | 4 | Φ1000×2.2 | DKG4-3 |
| 234 | WZG60/54-3G | 37.8 54 64.8 | 72 60 50 | 250 350 500 | 50GDL18-15×4 | 3 | 5.5 | Φ1000×2.2 | DKG5.5-3 |
| 235 | WZG75/54-3G | 37.8 54 64.8 | 90 75 62.5 | 250 350 500 | 50GDL18-15×5 | 3 | 7.5 | Φ1000×2.2 | DKG7.5-3 |
| 236 | WZG90/54-3G | 37.8 54 64.8 | 108 90 75 | 250 350 500 | 50GDL18-15×6 | 3 | 7.5 | Φ1000×2.2 | DKG7.5-3 |
| 237 | WZG105/54-3G | 37.8 54 64.8 | 126 105 82.5 | 250 350 500 | 50GDL18-15×7 | 3 | 11 | Φ1000×2.2 | DKG11-3 |
| 238 | WZG120/54-3G | 37.8 54 64.8 | 144 120 100 | 250 350 500 | 50GDL18-15×8 | 3 | 11 | Φ1000×2.2 | DKG11-3 |
| 239 | WZG135/54-3G | 37.8 54 64.8 | 162 135 112.5 | 250 350 500 | 50GDL18-15×9 | 3 | 15 | Φ1000×2.2 | DKG15-3 |
| 240 | WZG150/54-3G | 37.8 54 64.8 | 180 150 125 | 250 350 500 | 50GDL18-15×10 | 3 | 15 | Φ1000×2.2 | DKG15-3 |
| 241 | WZG24/72-3G | 50.4 72 86.4 | 27 24 22 | 400 650 800 | 65GDL24-12×2 | 3 | 3 | Φ1200×2.6 | DKG3-3 |
| 242 | WZG36/72-3G | 50.4 72 86.4 | 40.6 36 33 | 400 650 800 | 65GDL24-12×3 | 3 | 4 | Φ1200×2.6 | DKG4-3 |
| 243 | WZG48/72-3G | 50.4 72 86.4 | 54 48 44 | 400 650 800 | 65GDL24-12×4 | 3 | 5.5 | Φ1200×2.6 | DKG5.5-3 |
| 244 | WZG60/72-3G | 50.4 72 86.4 | 67.5 60 55 | 400 650 800 | 65GDL24-12×5 | 3 | 7.5 | Φ1200×2.6 | DKG7.5-3 |
| 245 | WZG72/72-3G | 50.4 72 86.4 | 81 72 66 | 400 650 800 | 65GDL24-12×6 | 3 | 7.5 | Φ1200×2.6 | DKG7.5-3 |
| 246 | WZG84/72-3G | 50.4 72 86.4 | 94.5 84 77 | 400 650 800 | 65GDL24-12×7 | 3 | 11 | Φ1200×2.6 | DKG11-3 |
| 247 | WZG96/72-3G | 50.4 72 86.4 | 108 96 88 | 400 650 800 | 65GDL24-12×8 | 3 | 11 | Φ1200×2.6 | DKG11-3 |
| 248 | WZG108/72-3G | 50.4 72 86.4 | 121.5 108 99 | 400 650 800 | 65GDL24-12×9 | 3 | 15 | Φ1200×2.6 | DKG15-3 |
| 249 | WZG120/72-3G | 50.4 72 86.4 | 135 120 110 | 400 650 800 | 65GDL24-12×10 | 3 | 15 | Φ1200×2.6 | DKG15-3 |
| 250 | WZG24/108-3G | 75.6 108 129.6 | 27 24 21 | 750 1000 1400 | 80GDL36-12×2 | 3 | 4 | Φ1400×3.1 | DKG4-3 |
| 251 | WZG36/108-3G | 75.6 108 129.6 | 40.5 36 31.5 | 750 1000 1400 | 80GDL36-12×3 | 3 | 5.5 | Φ1400×3.1 | DKG5.5-3 |
| 252 | WZG48/108-3G | 75.6 108 129.6 | 54 48 42 | 750 1000 1400 | 80GDL36-12×4 | 3 | 7.5 | Φ1400×3.1 | DKG7.5-3 |
| 253 | WZG60/108-3G | 75.6 108 129.6 | 67.5 60 52.5 | 750 1000 1400 | 80GDL36-12×5 | 3 | 11 | Φ1400×3.1 | DKG11-3 |
| 254 | WZG72/108-3G | 75.6 108 129.6 | 81 72 63 | 750 1000 1400 | 80GDL36-12×6 | 3 | 11 | Φ1400×3.1 | DKG11-3 |
| 255 | WZG84/108-3G | 75.6 108 129.6 | 94.5 84 73.5 | 750 1000 1400 | 80GDL36-12×7 | 3 | 15 | Φ1400×3.1 | DKG15-3 |
| 256 | WZG96/108-3G | 75.6 108 129.6 | 108 96 84 | 750 1000 1400 | 80GDL36-12×8 | 3 | 15 | Φ1400×3.1 | DKG15-3 |
| 257 | WZG108/108-3G | 75.6 108 129.6 | 121.5 108 94.5 | 750 1000 1400 | 80GDL36-12×9 | 3 | 18.5 | Φ1400×3.1 | DKG18.5-3 |
| 258 | WZG120/108-3G | 75.6 108 129.6 | 135 120 115 | 750 1000 1400 | 80GDL36-12×10 | 3 | 18.5 | Φ1400×3.1 | DKG18.5-3 |
| 259 | WZG28/162-3G | 113.4 162 194.4 | 32 28 25 | 1400 1800 1200 | 80GDL54-14×2 | 3 | 7.5 | Φ1600×3.2 | DKG7.5-3 |
| 260 | WZG42/162-3G | 113.4 162 194.4 | 48 42 37.5 | 1400 1800 1200 | 80GDL54-14×3 | 3 | 11 | Φ1600×3.2 | DKG11-3 |
| 261 | WZG56/162-3G | 113.4 162 194.4 | 64 56 50 | 1400 1800 1200 | 80GDL54-14×4 | 3 | 15 | Φ1600×3.2 | DKG15-3 |
| 262 | WZG70/162-3G | 113.4 162 194.4 | 80 70 62.5 | 1400 1800 1200 | 80GDL54-14×5 | 3 | 18.5 | Φ1600×3.2 | DKG18.5-3 |
| 263 | WZG84/162-3G | 113.4 162 194.4 | 96 84 75 | 1400 1800 1200 | 80GDL54-14×6 | 3 | 18.5 | Φ1600×3.2 | DKG18.5-3 |
| 264 | WZG98/162-3G | 113.4 162 194.4 | 112 98 87.5 | 1400 1800 1200 | 80GDL54-14×7 | 3 | 22 | Φ1600×3.2 | DKG22-3 |
| 265 | WZG112/162-3G | 113.4 162 194.4 | 128 112 100 | 1400 1800 1200 | 80GDL54-14×8 | 3 | 30 | Φ1600×3.2 | DKG30-3 |
| 266 | WZG126/162-3G | 113.4 162 194.4 | 144 126 112.5 | 1400 1800 1200 | 80GDL54-14×9 | 3 | 30 | Φ1600×3.2 | DKG30-3 |
| 267 | WZG140/162-3G | 113.4 162 194.4 | 160 140 125 | 1400 1800 1200 | 80GDL54-14×10 | 3 | 37 | Φ1600×3.2 | DKG37-3 |
| 268 | WZG28/216-3G | 151.2 216 259.2 | 32 28 24 | 1500 2600 3000 | 100GDL72-14×2 | 3 | 11 | Φ2000×3.5 | DKG11-3 |
| 269 | WZG42/216-3G | 151.2 216 259.2 | 48 42 36 | 1500 2600 3000 | 100GDL72-14×3 | 3 | 15 | Φ2000×3.5 | DKG15-3 |
| 270 | WZG66/216-3G | 151.2 216 259.2 | 64 56 48 | 1500 2600 3000 | 100GDL72-14×4 | 3 | 18.5 | Φ2000×3.5 | DKG18.5-3 |
| 271 | WZG70/216-3G | 151.2 216 259.2 | 80 70 60 | 1500 2600 3000 | 100GDL72-14×5 | 3 | 22 | Φ2000×3.5 | DKG22-3 |
| 272 | WZG84/216-3G | 151.2 216 259.2 | 96 84 72 | 1500 2600 3000 | 100GDL72-14×6 | 3 | 30 | Φ2000×3.5 | DKG30-3 |
| 273 | WZG98/216-3G | 151.2 216 259.2 | 112 98 84 | 1500 2600 3000 | 100GDL72-14×7 | 3 | 30 | Φ2000×3.5 | DKG30-3 |
| 274 | WZG112/216-3G | 151.2 216 259.2 | 128 112 96 | 1500 2600 3000 | 100GDL72-14×8 | 3 | 37 | Φ2000×3.5 | DKG37-3 |
| 275 | WZG126/216-3G | 151.2 216 259.2 | 144 126 108 | 1500 2600 3000 | 100GDL72-14×9 | 3 | 37 | Φ2000×3.5 | DKG37-3 |
| 276 | WZG140/216-3G | 151.2 216 259.2 | 160 140 120 | 1500 2600 3000 | 100GDL72-14×10 | 3 | 45 | Φ2000×3.5 | DKG45-3 |
| 277 | WZG24/18-3D | 12.6 18 21.6 | 26 24 22 | 80 130 220 | 40DL6-12×2 | 3 | 1.5 | Φ800×2.0 | DKG1.5-3 |
| 278 | WZG36/18-3D | 12.6 18 21.6 | 39 36 33 | 80 130 220 | 40DL6-12×3 | 3 | 2.2 | Φ800×2.0 | DKG2.2-3 |
| 279 | WZG48/18-3D | 12.6 18 21.6 | 52 48 44 | 80 130 220 | 40DL6-12×4 | 3 | 3 | Φ800×2.0 | DKG3-3 |
| 280 | WZG60/18-3D | 12.6 18 21.6 | 65 60 55 | 80 130 220 | 40DL6-12×5 | 3 | 4 | Φ800×2.0 | DKG4-3 |
| 281 | WZG72/18-3D | 12.6 18 21.6 | 78 72 66 | 80 130 220 | 40DL6-12×6 | 3 | 4 | Φ800×2.0 | DKG4-3 |
| 282 | WZG84/18-3D | 12.6 18 21.6 | 91 84 77 | 80 130 220 | 40DL6-12×7 | 3 | 5.5 | Φ800×2.0 | DKG5.5-3 |
| 283 | WZG96/18-3D | 12.6 18 21.6 | 104 96 88 | 80 130 220 | 40DL6-12×8 | 3 | 5.5 | Φ800×2.0 | DKG5.5-3 |
| 284 | WZG108/18-3D | 12.6 18 21.6 | 117 108 99 | 80 130 220 | 40DL6-12×9 | 3 | 7.5 | Φ800×2.0 | DKG7.5-3 |
| 285 | WZG120/18-3D | 12.6 18 21.6 | 130 120 110 | 80 130 220 | 40DL6-12×10 | 3 | 7.5 | Φ800×2.0 | DKG7.5-3 |
| 286 | WZG132/18-3D | 12.6 18 21.6 | 143 132 121 | 80 130 220 | 40DL6-12×11 | 3 | 7.5 | Φ800×2.0 | DKG7.5-3 |
| 287 | WZG144/18-3D | 12.6 18 21.6 | 156 144 132 | 80 130 220 | 40DL6-12×12 | 3 | 11 | Φ800×2.0 | DKG11-3 |
| 288 | WZG25/36-3D | 27 36 54 | 27 25 22 | 150 250 320 | 50DL12-12.5×2 | 3 | 3 | Φ800×2.0 | DKG3-3 |
| 289 | WZG38/36-3D | 27 36 54 | 40.5 37.5 33 | 150 250 320 | 50DL12-12.5×3 | 3 | 3 | Φ800×2.0 | DKG3-3 |
| 290 | WZG50/36-3D | 27 36 54 | 54 50 44 | 150 250 320 | 50DL12-12.5×4 | 3 | 4 | Φ800×2.0 | DKG4-3 |
| 291 | WZG62/36-3D | 27 36 54 | 67.5 62.5 55 | 150 250 320 | 50DL12-12.5×5 | 3 | 5.5 | Φ800×2.0 | DKG5.5-3 |
| 292 | WZG75/36-3D | 27 36 54 | 81 75 66 | 150 250 320 | 50DL12-12.5×6 | 3 | 5.5 | Φ800×2.0 | DKG5.5-3 |
| 293 | WZG88/36-3D | 27 36 54 | 94.5 87.5 77 | 150 250 320 | 50DL12-12.5×7 | 3 | 7.5 | Φ800×2.0 | DKG7.5-3 |
| 294 | WZG100/36-3D | 27 36 54 | 108 100 88 | 150 250 320 | 50DL12-12.5×8 | 3 | 7.5 | Φ800×2.0 | DKG7.5-3 |
| 295 | WZG112/36-3D | 27 36 54 | 121.5 112.5 99 | 150 250 320 | 50DL12-12.5×9 | 3 | 11 | Φ800×2.0 | DKG11-3 |
| 296 | WZG125/36-3D | 27 36 54 | 135 125 110 | 150 250 320 | 50DL12-12.5×10 | 3 | 11 | Φ800×2.0 | DKG11-3 |
| 297 | WZG30/90-3D | 54 90 108 | 33 30 26 | 450 900 1000 | 60DL30-15×2 | 3 | 5.5 | Φ1200×2.6 | DKG5.5-3 |
| 298 | WZG45/90-3D | 54 90 108 | 49.5 45 39 | 450 900 1000 | 60DL30-15×3 | 3 | 7.5 | Φ1200×2.6 | DKG7.5-3 |
| 299 | WZG60/90-3D | 54 90 108 | 66 60 52 | 450 900 1000 | 60DL30-15×4 | 3 | 11 | Φ1200×2.6 | DKG11-3 |
| 300 | WZG75/90-3D | 54 90 108 | 82.5 75 65 | 450 900 1000 | 60DL30-15×5 | 3 | 11 | Φ1200×2.6 | DKG11-3 |
| 301 | WZG90/90-3D | 54 90 108 | 99 90 78 | 450 900 1000 | 60DL30-15×6 | 3 | 15 | Φ1200×2.6 | DKG15-3 |
| 302 | WZG105/90-3D | 54 90 108 | 115.5 105 91 | 450 900 1000 | 60DL30-15×7 | 3 | 15 | Φ1200×2.6 | DKG15-3 |
| 303 | WZG120/90-3D | 54 90 108 | 132 120 104 | 450 900 1000 | 60DL30-15×8 | 3 | 18.5 | Φ1200×2.6 | DKG18.5-3 |
| 304 | WZG135/90-3D | 54 90 108 | 148.5 135 117 | 450 900 1000 | 60DL30-15×9 | 3 | 22 | Φ1200×2.6 | DKG22-3 |
| 305 | WZG150/90-3D | 54 90 108 | 165 150 130 | 450 900 1000 | 60DL30-15×10 | 3 | 22 | Φ1200×2.6 | DKG22-3 |
| 306 | WZG40/162-3D | 97.2 162 195 | 42 40 36 | 1200 1600 2000 | 50DL54-20×2 | 3 | 11 | Φ1400×3.1 | DKG11-3 |
| 307 | WZG60/162-3D | 97.2 162 195 | 63 60 54 | 1200 1600 2000 | 50DL54-20×3 | 3 | 15 | Φ1400×3.1 | DKG15-3 |
| 308 | WZG80/162-3D | 97.2 162 195 | 84 80 72 | 1200 1600 2000 | 50DL54-20×4 | 3 | 22 | Φ1400×3.1 | DKG22-3 |
| 309 | WZG100/162-3D | 97.2 162 195 | 105 100 90 | 1200 1600 2000 | 50DL54-20×5 | 3 | 30 | Φ1400×3.1 | DKG30-3 |
| 310 | WZG120/162-3D | 97.2 162 195 | 126 120 108 | 1200 1600 2000 | 50DL54-20×6 | 3 | 30 | Φ1400×3.1 | DKG30-3 |
| 311 | WZG140/162-3D | 97.2 162 195 | 147 140 126 | 1200 1600 2000 | 50DL54-20×7 | 3 | 37 | Φ1600×3.2 | DKG37-3 |
| 312 | WZG160/162-3D | 97.2 162 195 | 168 160 144 | 1200 1600 2000 | 50DL54-20×8 | 3 | 45 | Φ1600×3.2 | DKG45-3 |
| 313 | WZG180/162-3D | 97.2 162 195 | 189 180 162 | 1200 1600 2000 | 50DL54-20×9 | 3 | 45 | Φ1600×3.2 | DKG45-3 |
| 314 | WZG200/162-3D | 97.2 162 195 | 210 200 180 | 1200 1600 2000 | 50DL54-20×10 | 3 | 55 | Φ1600×3.2 | DKG55-3 |
| 315 | WZG40/216-3D | 150 216 270 | 45 40 36 | 1500 2500 3000 | 100DL72-20×2 | 3 | 18.5 | Φ2000×3.5 | DKG18.5-3 |
| 316 | WZG60/216-3D | 150 216 270 | 67.5 60 54 | 1500 2500 3000 | 100DL72-20×3 | 3 | 22 | Φ2000×3.5 | DKG22-3 |
| 317 | WZG80/216-3D | 150 216 270 | 90 80 72 | 1500 2500 3000 | 100DL72-20×4 | 3 | 30 | Φ2000×3.5 | DKG30-3 |
| 318 | WZG100/216-3D | 150 216 270 | 112.5 100 90 | 1500 2500 3000 | 100DL72-20×5 | 3 | 37 | Φ2000×3.5 | DKG37-3 |
| 319 | WZG120/216-3D | 150 216 270 | 135 120 106 | 1500 2500 3000 | 100DL72-20×6 | 3 | 45 | Φ2000×3.5 | DKG45-3 |
| 320 | WZG140/216-3D | 150 216 270 | 157.5 140 126 | 1500 2500 3000 | 100DL72-20×7 | 3 | 55 | Φ2000×3.5 | DKG55-3 |
| 321 | WZG160/216-3D | 150 216 270 | 180 160 144 | 1500 2500 3000 | 100DL72-20×8 | 3 | 55 | Φ2000×3.5 | DKG55-3 |
| 322 | WZG180/216-3D | 150 216 270 | 202.5 180 162 | 1500 2500 3000 | 100DL72-20×9 | 3 | 75 | Φ2000×3.5 | DKG75-3 |
| 323 | WZG200/216-3D | 216 300 378 | 225 200 180 | 2500 3500 4000 | 100DL72-20×10 | 3 | 75 | Φ2000×3.5 | DKG75-3 |
| 324 | WZG40/300-3D | 216 300 378 | 43 40 34 | 2500 3500 4000 | 100DL100-20×2 | 3 | 18.5 | Φ2000×3.5 | DKG18.5-3 |
| 325 | WZG60/300-3D | 216 300 378 | 65 60 51 | 2500 3500 4000 | 100DL100-20×3 | 3 | 30 | Φ2000×3.5 | DKG30-3 |
| 326 | WZG80/300-3D | 216 300 378 | 86.8 80 68 | 2500 3500 4000 | 100DL100-20×4 | 3 | 37 | Φ2000×3.5 | DKG37-3 |
| 327 | WZG100/300-3D | 216 300 378 | 108.5 100 85 | 2500 3500 4000 | 100DL100-20×5 | 3 | 45 | Φ2000×3.5 | DKG45-3 |
| 328 | WZG120/300-3D | 216 300 378 | 130 120 102 | 2500 3500 4000 | 100DL100-20×6 | 3 | 55 | Φ2000×3.5 | DKG55-3 |
| 329 | WZG140/300-3D | 216 300 378 | 151.9 140 119 | 2500 3500 4000 | 100DL100-20×7 | 3 | 75 | Φ2000×3.5 | DKG75-3 |
| 330 | WZG160/300-3D | 216 300 378 | 173.6 160 136 | 2500 3500 4000 | 100DL100-20×8 | 3 | 75 | Φ2000×3.5 | DKG75-3 |
| 331 | WZG180/300-3D | 216 300 378 | 195.3 180 153 | 2500 3500 4000 | 100DL100-20×9 | 3 | 90 | Φ2000×3.5 | DKG90-3 |
| 332 | WZG200/300-3D | 216 300 378 | 217 200 170 | 2500 3500 4000 | 100DL100-20×10 | 3 | 90 | Φ2000×3.5 | DKG90-3 |

| 序号 | 设备型号 | A | A1 | A2 | A3 | A4 | B | B1 | B2 | B3 | B4 | H | H1 | H2 | DN1 | DN2 | d1 | d2 |
| 1 | WZ30/6-2L | 1500 | 800 | 850 | 600 | 1000 | 1600 | 560 | 400 | 800 | 600 | 1250 | 185 | 700 | 80 | 80 | 18 | 24 |
| 2 | WZG40/6-2L | 750 | ||||||||||||||||
| 3 | WZG50/6-2L | 800 | ||||||||||||||||
| 4 | WZG60/6-2L | 850 | ||||||||||||||||
| 5 | WZG70/6-2L | 900 | ||||||||||||||||
| 6 | WZG80/6-2L | 950 | ||||||||||||||||
| 7 | WZG90/6-2L | 1000 | ||||||||||||||||
| 8 | WZG100/6-2L | 1000 | ||||||||||||||||
| 9 | WZG30/13-2L | 1500 | 900 | 850 | 700 | 1100 | 1600 | 560 | 400 | 800 | 600 | 1250 | 160 | 700 | 80 | 80 | 18 | 24 |
| 10 | WZG45/13-2L | 750 | ||||||||||||||||
| 11 | WZG60/13-2L | 800 | ||||||||||||||||
| 12 | WZG75/13-2L | 850 | ||||||||||||||||
| 13 | WZG90/13-2L | 900 | ||||||||||||||||
| 14 | WZG105/13-2L | 950 | ||||||||||||||||
| 15 | WZG120/13-2L | 1000 | ||||||||||||||||
| 16 | WZG30/24-2L | 2000 | 900 | 1050 | 700 | 1100 | 1800 | 560 | 480 | 800 | 800 | 1450 | 160 | 700 | 80 | 80 | 18 | 24 |
| 17 | WZG45/24-2L | 760 | ||||||||||||||||
| 18 | WZG60/24-2L | 820 | ||||||||||||||||
| 19 | WZG75/24-2L | 2000 | 900 | 1050 | 700 | 1100 | 1800 | 560 | 480 | 800 | 800 | 1450 | 160 | 880 | 80 | 80 | 18 | 24 |
| 20 | WZG90/24-2L | 940 | ||||||||||||||||
| 21 | WZG105/24-2L | 1000 | ||||||||||||||||
| 22 | WZG120/24-2L | 1060 | ||||||||||||||||
| 23 | WZG40/48-2L | 2200 | 1000 | 1100 | 800 | 1200 | 2000 | 660 | 600 | 1000 | 1000 | 1700 | 180 | 750 | 100 | 100 | 18 | 24 |
| 24 | WZG60/48-2L | 820 | ||||||||||||||||
| 25 | WZG80/48-2L | 890 | ||||||||||||||||
| 26 | WZG100/48-2L | 960 | ||||||||||||||||
| 27 | WZG120/48-2L | 1030 | ||||||||||||||||
| 28 | WZG40/72-2L | 2600 | 1000 | 1150 | 800 | 1200 | 2200 | 660 | 720 | 1000 | 1200 | 1850 | 200 | 800 | 100 | 100 | 18 | 24 |
| 29 | WZG60/72-2L | 880 | ||||||||||||||||
| 30 | WZG80/72-2L | 960 | ||||||||||||||||
| 31 | WZG100/72-2L | 1040 | ||||||||||||||||
| 32 | WZG120/72-2L | 1200 | ||||||||||||||||
| 33 | WZG40/100-2L | 3100 | 1200 | 1350 | 900 | 1400 | 2600 | 760 | 840 | 1200 | 1400 | 2100 | 220 | 900 | 125 | 125 | 18 | 27 |
| 34 | WZG60/100-2L | 980 | ||||||||||||||||
| 35 | WZG80/100-2L | 1060 | ||||||||||||||||
| 36 | WZG100/100-2L | 1140 | ||||||||||||||||
| 37 | WZG33/8-2G | 1500 | 800 | 850 | 600 | 1000 | 1600 | 560 | 400 | 700 | 600 | 1250 | 160 | 800 | 80 | 80 | 18 | 24 |
| 38 | WZG44/8-2G | |||||||||||||||||
| 39 | WZG55/8-2G | |||||||||||||||||
| 40 | WZG66/8-2G | |||||||||||||||||
| 41 | WZG77/8-2G | |||||||||||||||||
| 42 | WZG88/8-2G | |||||||||||||||||
| 43 | WZG99/8-2G | |||||||||||||||||
| 44 | WZG110/8-2G | |||||||||||||||||
| 45 | WZG121/8-2G | |||||||||||||||||
| 46 | WZG132/8-2G | |||||||||||||||||
| 47 | WZG36/12-2G | 1500 | 900 | 850 | 700 | 1110 | 1600 | 560 | 400 | 800 | 600 | 1250 | 160 | 800 | 80 | 80 | 18 | 24 |
| 48 | WZG48/12-2G | |||||||||||||||||
| 49 | WZG60/12-2G | |||||||||||||||||
| 50 | WZG72/12-2G | |||||||||||||||||
| 51 | WZG84/12-2G | |||||||||||||||||
| 52 | WZG96/12-2G | |||||||||||||||||
| 53 | WZG108/12-2G | |||||||||||||||||
| 54 | WZG120/12-2G | |||||||||||||||||
| 55 | WZG132/12-2G | |||||||||||||||||
| 56 | WZG144/12-2G | |||||||||||||||||
| 57 | WZG30/24-2G | 2000 | 900 | 1050 | 700 | 1100 | 1800 | 560 | 480 | 800 | 800 | 1450 | 180 | 800 | 80 | 80 | 18 | 24 |
| 58 | WZG45/24-2G | |||||||||||||||||
| 59 | WZG60/24-2G | |||||||||||||||||
| 60 | WZG75/24-2G | |||||||||||||||||
| 61 | WZG90/24-2G | |||||||||||||||||
| 62 | WZG105/24-2G | |||||||||||||||||
| 63 | WZG120/24-2G | |||||||||||||||||
| 64 | WZG135/24- | 2000 | 900 | 1050 | 700 | 1100 | 1800 | 560 | 480 | 800 | 800 | 1450 | 180 | 800 | 80 | 80 | 18 | 24 |
| 65 | WZG150/24- | |||||||||||||||||
| 66 | WZG30/36- | 2000 | 900 | 1050 | 700 | 1100 | 1800 | 560 | 480 | 800 | 800 | 1450 | 180 | 800 | 80 | 80 | 18 | 24 |
| 67 | WZG45/36- | |||||||||||||||||
| 68 | WZG60/36- | |||||||||||||||||
| 69 | WZG75/36- | |||||||||||||||||
| 70 | WZG90/36- | |||||||||||||||||
| 71 | WZG105/36- | |||||||||||||||||
| 72 | WZG120/36- | |||||||||||||||||
| 73 | WZG135/36- | |||||||||||||||||
| 74 | WZG150/36- | |||||||||||||||||
| 75 | WZG24/48- | 2200 | 1000 | 1150 | 800 | 1200 | 2000 | 660 | 600 | 1000 | 1000 | 1700 | 180 | 800 | 100 | 100 | 18 | 24 |
| 76 | WZG36/48- | |||||||||||||||||
| 77 | WZG48/48- | |||||||||||||||||
| 78 | WZG60/48- | |||||||||||||||||
| 79 | WZG72/48- | |||||||||||||||||
| 80 | WZG84/48- | |||||||||||||||||
| 81 | WZG96/48- | |||||||||||||||||
| 82 | WZG108/48- | |||||||||||||||||
| 83 | WZG120/48- | |||||||||||||||||
| 84 | WZG24/72- | 2600 | 1000 | 1150 | 800 | 1200 | 2200 | 660 | 720 | 1000 | 1200 | 1850 | 200 | 900 | 100 | 100 | 18 | 24 |
| 85 | WZG36/72- | |||||||||||||||||
| 86 | WZG48/72- | |||||||||||||||||
| 87 | WZG60/72- | |||||||||||||||||
| 88 | WZG72/72- | |||||||||||||||||
| 89 | WZG84/72- | |||||||||||||||||
| 90 | WZG96/72- | |||||||||||||||||
| 91 | WZG108/72- | |||||||||||||||||
| 92 | WZG120/72- | |||||||||||||||||
| 93 | WZG28/108- | 3100 | 1200 | 1350 | 900 | 1400 | 2600 | 760 | 840 | 1200 | 1400 | 2100 | 230 | 900 | 125 | 125 | 18 | 27 |
| 94 | WZG42/108- | |||||||||||||||||
| 95 | WZG56/108- | |||||||||||||||||
| 96 | WZG70/108- | |||||||||||||||||
| 97 | WZG84/108- | |||||||||||||||||
| 98 | WZG98/108- | |||||||||||||||||
| 99 | WZG112/108- | |||||||||||||||||
| 100 | WZG126/108- | |||||||||||||||||
| 101 | WZG140/108- | |||||||||||||||||
| 102 | WZG28/144- | 3200 | 1200 | 1350 | 900 | 1400 | 2600 | 760 | 840 | 1200 | 1600 | 2300 | 230 | 900 | 125 | 125 | 18 | 27 |
| 103 | WZG42/144- | |||||||||||||||||
| 104 | WZG56/144- | |||||||||||||||||
| 105 | WZG70/144- | |||||||||||||||||
| 106 | WZG84/144- | |||||||||||||||||
| 107 | WZG98/144- | |||||||||||||||||
| 108 | WZG112/144- | |||||||||||||||||
| 109 | WZG126/144-2G | 3200 | 1200 | 1350 | 900 | 1400 | 2600 | 760 | 840 | 1200 | 1600 | 2300 | 230 | 900 | 125 | 125 | 18 | 27 |
| 110 | WZG140/144-2G | |||||||||||||||||
| 111 | WZG24/12-2D | 1500 | 800 | 850 | 600 | 1000 | 1600 | 560 | 400 | 800 | 600 | 1250 | 200 | 800 | 80 | 80 | 18 | 24 |
| 112 | WZG36/12-2D | 860 | ||||||||||||||||
| 113 | WZG48/12-2D | 920 | ||||||||||||||||
| 114 | WZG60/12-2D | 980 | ||||||||||||||||
| 115 | WZG72/12-2D | 1040 | ||||||||||||||||
| 116 | WZG84/12-2D | 1100 | ||||||||||||||||
| 117 | WZG96/12-2D | 1160 | ||||||||||||||||
| 118 | WZG108/12-2D | 1220 | ||||||||||||||||
| 119 | WZG120/12-2D | 1280 | ||||||||||||||||
| 120 | WZG132/12-2D | 1340 | ||||||||||||||||
| 121 | WZG144/12-2D | 1400 | ||||||||||||||||
| 122 | WZG25/25-2D | 2000 | 900 | 1050 | 700 | 1100 | 1800 | 560 | 480 | 800 | 800 | 1450 | 270 | 800 | 80 | 80 | 18 | 24 |
| 123 | WZG38/25-2D | 860 | ||||||||||||||||
| 124 | WZG50/25-2D | 920 | ||||||||||||||||
| 125 | WZG62/25-2D | 980 | ||||||||||||||||
| 126 | WZG75/25-2D | 1040 | ||||||||||||||||
| 127 | WZG88/25-2D | 1100 | ||||||||||||||||
| 128 | WZG100/25-2D | 1160 | ||||||||||||||||
| 129 | WZG112/25-2D | 1220 | ||||||||||||||||
| 130 | WZG125-252D | 1280 | ||||||||||||||||
| 131 | WZG30/60-2D | 2200 | 1000 | 1100 | 800 | 1200 | 2000 | 660 | 600 | 1000 | 1000 | 1700 | 250 | 900 | 100 | 100 | 18 | 24 |
| 132 | WZG45/60-2D | 980 | ||||||||||||||||
| 133 | WZG60/60-2D | 1060 | ||||||||||||||||
| 134 | WZG75/60-2D | 1140 | ||||||||||||||||
| 135 | WZG90/60-2D | 1220 | ||||||||||||||||
| 136 | WZG105/60-2D | 1300 | ||||||||||||||||
| 137 | WZG120/60-2D | 1380 | ||||||||||||||||
| 138 | WZG135/60-2D | 1460 | ||||||||||||||||
| 139 | WZG150/60-2D | 1540 | ||||||||||||||||
| 140 | WZG40/108-2D | 3100 | 1200 | 1350 | 900 | 1400 | 2600 | 760 | 840 | 1200 | 1400 | 2100 | 250 | 900 | 125 | 125 | 18 | 27 |
| 141 | WZG60/108-2D | 990 | ||||||||||||||||
| 142 | WZG80/108-2D | 1080 | ||||||||||||||||
| 143 | WZG100/108-2D | 1170 | ||||||||||||||||
| 144 | WZG120/108-2D | 1260 | ||||||||||||||||
| 145 | WZG140/108-2D | 1350 | ||||||||||||||||
| 146 | WZG160/108-2D | 1440 | ||||||||||||||||
| 147 | WZG180/108-2D | 1530 | ||||||||||||||||
| 148 | WZG200/108-2D | 1620 | ||||||||||||||||
| 149 | WZG40/144-2D | 3200 | 1400 | 1400 | 1000 | 1600 | 2800 | 760 | 900 | 1300 | 1600 | 2300 | 280 | 1100 | 150 | 150 | 18 | 27 |
| 150 | WZG60/144-2D | 1200 | ||||||||||||||||
| 151 | WZG80/144-2D | 1300 | ||||||||||||||||
| 152 | WZG100/144-2D | 1400 | ||||||||||||||||
| 153 | WZG120/144-2D | 3200 | 1400 | 1400 | 1000 | 1600 | 2800 | 760 | 900 | 1300 | 1600 | 2300 | 280 | 1500 | 150 | 150 | 18 | 27 |
| 154 | WZG140/144-2D | 1600 | ||||||||||||||||
| 155 | WZG160/144-2D | 1700 | ||||||||||||||||
| 156 | WZG180/144-2D | 1800 | ||||||||||||||||
| 157 | WZG200/144-2D | 1900 | ||||||||||||||||
| 158 | WZG40/200-2D | 3500 | 1400 | 1400 | 1000 | 1600 | 2800 | 760 | 900 | 1300 | 2000 | 2700 | 280 | 1100 | 150 | 150 | 18 | 27 |
| 159 | WZG60/200-2D | 1200 | ||||||||||||||||
| 160 | WZG80/200-2D | 1300 | ||||||||||||||||
| 161 | WZG100/200-2D | 1400 | ||||||||||||||||
| 162 | WZG120/200-2D | 1500 | ||||||||||||||||
| 163 | WZG140/200-2D | 1600 | ||||||||||||||||
| 164 | WZG160/200-2D | 1700 | ||||||||||||||||
| 165 | WZG180/200-2D | 1800 | ||||||||||||||||
| 166 | WZG200/200-2D | 1900 | ||||||||||||||||
| 167 | WZG30/9-3L | 1500 | 1300 | 850 | 600 | 1500 | 1600 | 560 | 400 | 800 | 600 | 1250 | 185 | 700 | 80 | 80 | 18 | 24 |
| 168 | WZG40/9-3L | 750 | ||||||||||||||||
| 169 | WZG50/9-3L | 800 | ||||||||||||||||
| 170 | WZG60/9-3L | 850 | ||||||||||||||||
| 171 | WZG70/9-3L | 900 | ||||||||||||||||
| 172 | WZG80/9-3L | 950 | ||||||||||||||||
| 173 | WZG90/9-3L | 1000 | ||||||||||||||||
| 174 | WZG100/9-3L | 1000 | ||||||||||||||||
| 175 | WZG30/20-3L | 2000 | 1500 | 1050 | 1300 | 1700 | 1800 | 560 | 480 | 800 | 800 | 1450 | 160 | 700 | 80 | 80 | 18 | 24 |
| 176 | WZG45/20-3L | 750 | ||||||||||||||||
| 177 | WZG60/20-3L | 800 | ||||||||||||||||
| 178 | WZG75/20-3L | 850 | ||||||||||||||||
| 179 | WZG90/20-3L | 900 | ||||||||||||||||
| 180 | WZG105/20-3L | 950 | ||||||||||||||||
| 181 | WZG120/20-3L | 100 | ||||||||||||||||
| 182 | WZG30/36-3L | 2000 | 1500 | 1050 | 1300 | 1700 | 1800 | 560 | 480 | 800 | 800 | 1450 | 160 | 700 | 80 | 80 | 18 | 24 |
| 183 | WZG45/36-3L | 760 | ||||||||||||||||
| 184 | WZG60/36-3L | 820 | ||||||||||||||||
| 185 | WZG75/36-3L | 880 | ||||||||||||||||
| 186 | WZG90/36-3L | 940 | ||||||||||||||||
| 187 | WZG105/36-3L | 1000 | ||||||||||||||||
| 188 | WZG120/36-3L | 1060 | ||||||||||||||||
| 189 | WZG40/72-3L | 2600 | 1800 | 1150 | 1500 | 2000 | 2200 | 660 | 720 | 1000 | 1200 | 1850 | 200 | 750 | 100 | 100 | 18 | 24 |
| 190 | WZG60/72-3L | 820 | ||||||||||||||||
| 191 | WZG80/72-3L | 890 | ||||||||||||||||
| 192 | WZG100/72-3L | 960 | ||||||||||||||||
| 193 | WZG120/72-3L | 1030 | ||||||||||||||||
| 194 | WZG40/108-3L | 3100 | 1800 | 1350 | 1600 | 2000 | 2600 | 760 | 840 | 1200 | 1400 | 2100 | 220 | 800 | 125 | 125 | 18 | 27 |
| 195 | WZG60/108-3L | 880 | ||||||||||||||||
| 196 | WZG80/108-3L | 960 | ||||||||||||||||
| 197 | WZG100/108-3L | 1040 | ||||||||||||||||
| 198 | WZG120/108-3L | 3100 | 1800 | 1350 | 1600 | 2000 | 2600 | 760 | 840 | 1200 | 1400 | 2100 | 220 | 1200 | 125 | 125 | 18 | 27 |
| 199 | WZG40/150-3L | 900 | ||||||||||||||||
| 200 | WZG60/150-3L | 3200 | 1800 | 1350 | 1600 | 2000 | 2800 | 760 | 840 | 1200 | 1600 | 2300 | 230 | 980 | 125 | 125 | 18 | 27 |
| 201 | WZG80/150-3L | 1060 | ||||||||||||||||
| 202 | WZG100/150-3L | 1140 | ||||||||||||||||
| 203 | WZG33/12-3G | 1500 | 1200 | 850 | 800 | 1400 | 1600 | 560 | 400 | 700 | 600 | 1250 | 160 | 800 | 80 | 80 | 18 | 24 |
| 204 | WZG44/12-3G | |||||||||||||||||
| 205 | WZG55/12-3G | |||||||||||||||||
| 206 | WZG66/12-3G | |||||||||||||||||
| 207 | WZG77/12-3G | |||||||||||||||||
| 208 | WZG88/12-3G | |||||||||||||||||
| 209 | WZG99/12-3G | |||||||||||||||||
| 210 | WZG110/12-3G | |||||||||||||||||
| 211 | WZG121/12-3G | |||||||||||||||||
| 212 | WZG132/12-3G | |||||||||||||||||
| 213 | WZG36/18-3G | 2000 | 1400 | 1050 | 900 | 1600 | 1800 | 560 | 480 | 800 | 800 | 1450 | 180 | 800 | 80 | 80 | 18 | 24 |
| 214 | WZG48/18-3G | |||||||||||||||||
| 215 | WZG60/18-3G | |||||||||||||||||
| 216 | WZG72/18-3G | |||||||||||||||||
| 217 | WZG84/18-3G | |||||||||||||||||
| 218 | WZG96/18-3G | |||||||||||||||||
| 219 | WZG108/18-3G | |||||||||||||||||
| 220 | WZG120/18-3G | |||||||||||||||||
| 221 | WZG132/18-3G | |||||||||||||||||
| 222 | WZG144/18-3G | |||||||||||||||||
| 223 | WZG30/36-3G | 2000 | 1400 | 1050 | 900 | 1600 | 1800 | 560 | 480 | 800 | 800 | 1450 | 180 | 800 | 80 | 80 | 18 | 24 |
| 224 | WZG45/36-3G | |||||||||||||||||
| 225 | WZG60/36-3G | |||||||||||||||||
| 226 | WZG75/36-3G | |||||||||||||||||
| 227 | WZG90/36-3G | |||||||||||||||||
| 228 | WZG105/36-3G | |||||||||||||||||
| 229 | WZG120/36-3G | |||||||||||||||||
| 230 | WZG135/36-3G | |||||||||||||||||
| 231 | WZG150/36-3G | |||||||||||||||||
| 232 | WZG30/54-3G | 2200 | 1600 | 1150 | 1100 | 1800 | 2000 | 660 | 600 | 1000 | 1000 | 1700 | 180 | 800 | 100 | 100 | 18 | 24 |
| 233 | WZG45/54-3G | |||||||||||||||||
| 234 | WZG60/54-3G | |||||||||||||||||
| 235 | WZG75/54-3G | |||||||||||||||||
| 236 | WZG90/54-3G | |||||||||||||||||
| 237 | WZG105/54-3G | |||||||||||||||||
| 238 | WZG120/54-3G | |||||||||||||||||
| 239 | WZG135/54-3G | |||||||||||||||||
| 240 | WZG150/54-3G | |||||||||||||||||
| 241 | WZG24/72-3G | 2600 | 1800 | 1150 | 1300 | 2000 | 2200 | 660 | 720 | 1000 | 1200 | 1850 | 180 | 900 | 100 | 100 | 18 | 24 |
| 242 | WZG36/72-3G | |||||||||||||||||
| 243 | WZG48/72-3G | 2600 | 1800 | 1150 | 1300 | 2000 | 2200 | 660 | 720 | 1000 | 1200 | 1850 | 180 | 900 | 100 | 100 | 18 | 24 |
| 244 | WZG60/72-3G | |||||||||||||||||
| 245 | WZG72/72-3G | |||||||||||||||||
| 246 | WZG84/72-3G | |||||||||||||||||
| 247 | WZG96/72-3G | |||||||||||||||||
| 248 | WZG108/72-3G | |||||||||||||||||
| 249 | WZG120/72-3G | |||||||||||||||||
| 250 | WZG24/108-3G | 3100 | 1800 | 1350 | 1300 | 2000 | 2600 | 760 | 840 | 1200 | 1400 | 2100 | 200 | 900 | 125 | 125 | 18 | 27 |
| 251 | WZG36/108-3G | |||||||||||||||||
| 252 | WZG48/108-3G | |||||||||||||||||
| 253 | WZG60/108-3G | |||||||||||||||||
| 254 | WZG72/108-3G | |||||||||||||||||
| 255 | WZG84/108-3G | |||||||||||||||||
| 256 | WZG96/108-3G | |||||||||||||||||
| 257 | WZG108/108-3G | |||||||||||||||||
| 258 | WZG120/108-3G | |||||||||||||||||
| 259 | WZG28/162-3G | 3200 | 1200 | 1350 | 900 | 1400 | 2600 | 760 | 840 | 1200 | 1600 | 2300 | 230 | 900 | 125 | 125 | 18 | 27 |
| 260 | WZG42/162-3G | |||||||||||||||||
| 261 | WZG56/162-3G | |||||||||||||||||
| 262 | WZG70/162-3G | |||||||||||||||||
| 263 | WZG84/162-3G | |||||||||||||||||
| 264 | WZG98/162-3G | |||||||||||||||||
| 265 | WZG112/162-3G | |||||||||||||||||
| 266 | WZG126/162-3G | |||||||||||||||||
| 267 | WZG140/162-3G | |||||||||||||||||
| 268 | WZG28/216-3G | 3500 | 1600 | 1400 | 1000 | 1800 | 2800 | 760 | 900 | 1400 | 2000 | 2700 | 250 | 900 | 150 | 150 | 18 | 27 |
| 269 | WZG42/216-3G | |||||||||||||||||
| 270 | WZG56/216-3G | |||||||||||||||||
| 271 | WZG70/216-3G | |||||||||||||||||
| 272 | WZG84/216-3G | |||||||||||||||||
| 273 | WZG98/216-3G | |||||||||||||||||
| 274 | WZG112/216-3G | |||||||||||||||||
| 275 | WZG126/216-3G | |||||||||||||||||
| 276 | WZG140/216-3G | |||||||||||||||||
| 277 | WZG24//18-3D | 2000 | 1200 | 1050 | 900 | 1400 | 1800 | 560 | 480 | 800 | 800 | 1450 | 210 | 800 | 80 | 80 | 18 | 24 |
| 278 | WZG36/18-3D | 860 | ||||||||||||||||
| 279 | WZG48/18-3D | 920 | ||||||||||||||||
| 280 | WZG60/18-3D | 980 | ||||||||||||||||
| 281 | WZG72/18-3D | 1040 | ||||||||||||||||
| 282 | WZG84/18-3D | 1100 | ||||||||||||||||
| 283 | WZG96/18-3D | 1160 | ||||||||||||||||
| 284 | WZG108/18-3D | 1220 | ||||||||||||||||
| 285 | WZG120/18-3D | 1280 | ||||||||||||||||
| 286 | WZG132/18-3D | 1340 | ||||||||||||||||
| 287 | WZG144/18-3D | 1400 | ||||||||||||||||
| 288 | WZG25/36-3D | 2000 | 1300 | 1050 | 900 | 1400 | 1800 | 560 | 480 | 800 | 800 | 1450 | 220 | 800 | 80 | 80 | 18 | 24 |
| 289 | WZG38/36-3D | 860 | ||||||||||||||||
| 290 | WZG50/36-3D | 920 | ||||||||||||||||
| 291 | WZG62/36-3D | 980 | ||||||||||||||||
| 292 | WZG75/36-3D | 1040 | ||||||||||||||||
| 293 | WZG88/36-3D | 1100 | ||||||||||||||||
| 294 | WZG100/36-3D | 1160 | ||||||||||||||||
| 295 | WZG112/36-3D | 1220 | ||||||||||||||||
| 296 | WZG125/36-3D | 1280 | ||||||||||||||||
| 297 | WZG30/90-3D | 2600 | 1800 | 1150 | 1300 | 2000 | 2200 | 660 | 720 | 1000 | 1200 | 1850 | 240 | 900 | 100 | 100 | 18 | 24 |
| 298 | WZG45/90-3D | 980 | ||||||||||||||||
| 299 | WZG60/90-3D | 1060 | ||||||||||||||||
| 300 | WZG75/90-3D | 1140 | ||||||||||||||||
| 301 | WZG90/90-3D | 1220 | ||||||||||||||||
| 302 | WZG105/90-3D | 1300 | ||||||||||||||||
| 303 | WZG120/90-3D | 1380 | ||||||||||||||||
| 304 | WZG135/90-3D | 1460 | ||||||||||||||||
| 305 | WZG150/90-3D | 1540 | ||||||||||||||||
| 306 | WZG40/162-3D | 3100 | 1800 | 1350 | 900 | 2000 | 2600 | 760 | 840 | 1200 | 1400 | 2100 | 250 | 900 | 125 | 125 | 18 | 27 |
| 307 | WZG60/162-3D | 990 | ||||||||||||||||
| 308 | WZG80/162-3D | 1080 | ||||||||||||||||
| 309 | WZG100/162-3D | 1170 | ||||||||||||||||
| 310 | WZG120/162-3D | 1260 | ||||||||||||||||
| 311 | WZG140/162-3D | 1350 | ||||||||||||||||
| 312 | WZG160/162-3D | 1440 | ||||||||||||||||
| 313 | WZG180/162-3D | 1530 | ||||||||||||||||
| 314 | WZG200/162-3D | 1620 | ||||||||||||||||
| 315 | WZG40/216-3D | 3500 | 2200 | 1400 | 1000 | 2500 | 2800 | 760 | 900 | 1300 | 2000 | 2700 | 280 | 1100 | 150 | 150 | 18 | 27 |
| 316 | WZG60/216-3D | 1200 | ||||||||||||||||
| 317 | WZG80/216-3D | 1300 | ||||||||||||||||
| 318 | WZG100/216-3D | 1400 | ||||||||||||||||
| 319 | WZG120/216-3D | 1500 | ||||||||||||||||
| 320 | WZG140/216-3D | 1600 | ||||||||||||||||
| 321 | WZG160/216-3D | 1700 | ||||||||||||||||
| 322 | WZG180/216-3D | 1800 | ||||||||||||||||
| 323 | WZG200/216-3D | 1900 | ||||||||||||||||
| 324 | WZG40/300-3D | 3500 | 2200 | 1400 | 1000 | 2500 | 2800 | 760 | 900 | 1300 | 2000 | 2700 | 280 | 1100 | 150 | 150 | 18 | 27 |
| 325 | WZG60/300-3D | 1200 | ||||||||||||||||
| 326 | WZG80/300-3D | 1300 | ||||||||||||||||
| 327 | WZG100/300-3D | 1400 | ||||||||||||||||
| 328 | WZG120/300-3D | 1500 | ||||||||||||||||
| 329 | WZG140/300-3D | 1600 | ||||||||||||||||
| 330 | WZG160/300-3D | 1700 | ||||||||||||||||
| 331 | WZG180/300-3D | 1800 | ||||||||||||||||
| 332 | WZG200/300-3D | 1900 |
1.本网页显示的WZG智能无负压给水设备图片、参数表等样本信息,为LQ牌上海连渠泵业所有,请勿转载,转载必究。
2.上海连渠泵业有限公司是一家专业的给排水用泵生产厂家/制造商。生产的WZG智能无负压给水设备,质量可靠,价格合理,如果还需要了解其他给排水用泵,请来电咨询,我们也可根据客户要求专门定制。
3.由于编辑水平有限,以上信息仅作参考之用,错误和不妥之处在所难免,真诚希望您批评指正。
给排水系统是任何建筑都必不可少的重要组成部分。一般建筑物的给排水系统包括生活给水系统、生活排水系统和消防水系统,这几个系统都是楼宇自动化系统重要的监控对象。上海连渠泵业有限公司生产的管道泵、离心泵、多级泵、给水泵、变频恒压供水设备、无负压给水设备、消防稳压给水设备等给排水用泵已被各大城市城建、消防等用户大量使用,并受到广大用户的不断好评。