
FB642TC陶瓷立式翻板阀

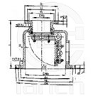
FB642TC陶瓷立式翻板阀 结构图
阀门说明
1. 阀瓣、阀座密封面采用结构陶瓷制造、耐磨损、耐腐蚀、抗高温蠕变和热震性,可实现长寿命免维护。
2. 适用于带较大固体颗粒的介质管路。
主要性能规范
| 名称 Name |
FB642TC |
| 公称压力Nominal pressure |
0.6 |
| 试验压力Test pressure |
壳体 shell |
0.9 |
| 密封 Seal |
0.7 |
| 密封方式 Seal way |
强制密封 Force to seal |
| 工作压力(MPa)working pressure |
0.6 |
| 工作温度Working temperature |
≤200℃ |
| 适用介质 Applicable medium |
空气、干灰等介质air or dry dreg |
主要零件材料
| 阀体body |
碳素铸钢Carbon cast steel |
| 阀座Seat |
结构陶瓷+碳钢Structure ceramic + cast steel |
| 阀瓣Disc |
结构陶瓷+碳钢Structure ceramic + cast steel |
| 销轴pin roll |
不锈钢Stainless steel |
主要连接尺寸
| 型号Type |
PN |
尺寸(mm)Dimensions |
| DN/DN |
L |
| FB642TC |
0.6MPa |
100/250 |
270 |
| 125/300 |
330 |
| 150/350 |
400 |
| 200/400 |
480 |
进口法兰尺寸
| 型号Type |
PN |
尺寸(mm)Dimensions |
| DN/DN |
Dj |
Kj |
dj |
DNj |
Cj |
fj |
nj |
Φj |
| FB642TC |
0.6MPa |
100/250 |
200 |
180 |
156 |
100 |
22 |
3 |
8 |
18 |
| 125/300 |
250 |
210 |
184 |
125 |
22 |
3 |
8 |
18 |
| 150/350 |
285 |
240 |
211 |
150 |
24 |
3 |
8 |
22 |
| 200/400 |
340 |
295 |
266 |
200 |
24 |
3 |
12 |
22 |
出口法兰尺寸
| 型号Type |
PN |
尺寸(mm)Dimensions |
| DN/DN |
Dc |
Kc |
dc |
DNc |
Cc |
fc |
Nc |
Φc |
| FB642TC |
0.6MPa |
100/250 |
405 |
355 |
319 |
250 |
26 |
3 |
12 |
26 |
| 125/300 |
460 |
410 |
370 |
300 |
28 |
4 |
12 |
26 |
| 150/350 |
520 |
470 |
429 |
350 |
30 |
4 |
16 |
26 |
| 200/400 |
580 |
525 |
480 |
400 |
32 |
4 |
16 |
30 |
订购注意事项:
1.本网页显示的FB642TC陶瓷立式翻板阀图片、参数表等样本信息,为上海连渠所有,请勿转载,转载必究。
2.上海连渠是一家特种行业用泵专业配套的耐磨浆液阀生产厂家/制造商。生产的FB642TC陶瓷立式翻板阀,质量可靠,价格合理,如果还需要了解其他耐磨浆液阀,请来电咨询,我们也可根据客户要求专门定制。
3.由于编辑水平有限,以上信息仅作参考之用,错误和不妥之处在所难免,真诚希望您批评指正。