

XBC型柴油机消防泵是上海连渠泵业制造有限公司根据国内大型建筑的消防用泵的市场需求和适用特点而自行研制生产的新型消防泵。柴油机消防泵具有高效率、运转寿命长、高可靠性(不存在较长时间停用后气动咬死的故障),是目前国内适应建筑公称消防、喷淋设施用泵的首选产品。产品性能质量符合GB6245《消防泵性能要求和试验方法》,经国家消防装备质量监督检测中心测试,产品达到国内领先水平,获上海市消防局审批认可。柴油机消防泵可供输送80°C一下不含固体颗粒的清水或物理化学性质类似于水的液体之用。在满足消防工况的前提下,兼顾生活、生产给水的工况要求。XBC型柴油机消防泵既可用于独立消防给水系统,有可用于消防、生活共用给水系统,还可用于建筑、市政、工矿、给排水、船舶、野外作业等各种场合的给水系统。
XBC柴油机消防泵与电气仪表等设备安装在一起整套组合,具有功能齐全,自动化程度高,结构合理,故障自动报警及接收启动信号,能自行完成启动程序,能快速投入全负荷运行。机组可自行选配减振器、橡胶挠性接头、排气口配波纹管消音器。在燃料不足、蓄电池电压低、润滑油温度高、超速等状况时备有报警装置,同时设有加热装置,确保柴油机低温环境的正常起动。整个系统安全可靠,使用方便。
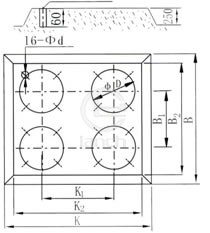
泵出口直径Φ100mm
流量 40L/S
出口压力0.53MPa
原动机为柴油机
消防泵
电泵为主消防泵,可以根据消防情况自动起动
配备稳压泵恒定管网压力
柴油机泵为备用消防泵,消防无电源情况下自动起动
电泵出现故障时柴油机泵起动


| 泵型号Type | 泵柔性联接基础尺寸Basic figure for flexible joint dimensions | 泵硬性联接基础尺寸Basic figure for rigid joint dimmensions | ||||||||||||
| K1 | B1 | K2 | B2 | K | B | D | Φd | K1d | B1d | K2d | B2d | Kd | Bd | |
| XBC1.9/5-50 | 750 | 216 | 1110 | 366 | 1160 | 416 | 130 | 8.5 | 750 | 216 | 1110 | 300 | 1160 | 350 |
| XBC2.9/5-50 | 850 | 240 | 1210 | 390 | 1260 | 440 | 130 | 8.5 | 850 | 240 | 1210 | 390 | 1260 | 440 |
| XBC3.8/5-50 | 908 | 240 | 1268 | 390 | 1318 | 440 | 130 | 8.5 | 908 | 240 | 1268 | 390 | 1318 | 440 |
| XBC4.8/5-50 | 939 | 385 | 1299 | 535 | 1349 | 585 | 130 | 8.5 | 939 | 385 | 1299 | 535 | 1349 | 585 |
| XBC5.8/5-50 | 997 | 385 | 1357 | 535 | 1407 | 585 | 130 | 8.5 | 997 | 385 | 1357 | 535 | 1407 | 585 |
| XBC6.8/5-50 | 1055 | 385 | 1415 | 535 | 1465 | 585 | 130 | 8.5 | 1055 | 385 | 1415 | 535 | 1465 | 585 |
| XBC7.8/5-50 | 1390 | 445 | 1750 | 535 | 1800 | 645 | 130 | 8.5 | 1390 | 445 | 1750 | 535 | 1800 | 605 |
| XBC2.9/10-65 | 781 | 385 | 1141 | 535 | 1191 | 585 | 130 | 8.5 | 781 | 385 | 1141 | 535 | 1191 | 685 |
| XBC4.0/10-65 | 1130 | 445 | 1490 | 595 | 1540 | 645 | 130 | 8.5 | 1130 | 445 | 1490 | 535 | 1540 | 605 |
| XBC5.0/10-65 | 1208 | 445 | 1568 | 595 | 1618 | 645 | 130 | 8.5 | 1208 | 445 | 1568 | 535 | 1618 | 605 |
| XBC6.1/10-65 | 1286 | 445 | 1646 | 595 | 1696 | 645 | 130 | 8.5 | 1285 | 445 | 1646 | 535 | 1696 | 605 |
| XBC2.0/15-80 | 660 | 445 | 1070 | 635 | 1120 | 685 | 170 | 12.5 | 660 | 445 | 1070 | 535 | 1120 | 585 |
| XBC4.0/15-80 | 1025 | 445 | 1435 | 695 | 1485 | 745 | 170 | 12.5 | 1025 | 445 | 1435 | 555 | 1485 | 605 |
| XBC6.0/15-80 | 1120 | 445 | 1530 | 695 | 1580 | 745 | 170 | 12.5 | 1120 | 445 | 1530 | 555 | 1580 | |
| XBC8.0/15-80 | 1215 | 445 | 1625 | 695 | 1675 | 745 | 170 | 12.5 | 1215 | 445 | 1625 | 555 | 1675 | |
| XBC3.7/20-80 | 1025 | 445 | 1435 | 695 | 1485 | 745 | 170 | 12.5 | 1025 | 445 | 1435 | 555 | 1485 | |
| XBC5.7/20-80 | 1120 | 445 | 1530 | 695 | 1580 | 745 | 170 | 12.5 | 1120 | 445 | 1530 | 555 | 1580 | |
| XBC7.6/20-80 | 1068 | 445 | 1478 | 695 | 1528 | 745 | 170 | 12.5 | 1068 | 445 | 1478 | 555 | 1528 | |
| XBC3.1/25-80 | 930 | 445 | 1340 | 695 | 1390 | 745 | 170 | 12.5 | 930 | 445 | 1340 | 555 | 1390 | |
| XBC4.7/25-80 | 1025 | 445 | 1435 | 695 | 1485 | 745 | 170 | 12.5 | 1025 | 445 | 1435 | 555 | 1485 | |
| XBC6.4/25-80 | 1315 | 445 | 1725 | 695 | 1775 | 745 | 170 | 12.5 | 1315 | 445 | 1725 | 555 | 1775 | |
| XBC3.7/30-80 | 1025 | 445 | 1435 | 695 | 1485 | 745 | 170 | 12.5 | 1025 | 445 | 1435 | 555 | 1485 | |
| XBC4.9/30-80 | 1315 | 445 | 1725 | 695 | 1775 | 745 | 170 | 12.5 | 1315 | 445 | 1725 | 555 | 1775 | |
| XBC5.7/30-100 | 1075 | 445 | 1725 | 695 | 1775 | 745 | 170 | 12.5 | 1075 | 445 | 1725 | 555 | 1775 | 605 |
| XBC9.3/30-100 | 1270 | 694 | 1920 | 1034 | 1970 | 1084 | 260 | 12.5 | 1270 | 445 | 1920 | 555 | 1970 | 900 |
| XBC12.8/30-100 | 1400 | 694 | 2050 | 1034 | 2100 | 1084 | 260 | 12.5 | 1400 | 445 | 2050 | 555 | 2100 | 900 |
| XBC5.4/35-100 | 1075 | 445 | 1725 | 785 | 1775 | 835 | 260 | 12.5 | 1075 | 694 | 1725 | 555 | 1775 | 605 |
| XBC7.1/35-100 | 1930 | 445 | 2580 | 785 | 2630 | 835 | 260 | 12.5 | 1930 | 694 | 2580 | 555 | 2630 | 605 |
| XBC8.0/35-100 | 1270 | 694 | 1920 | 1034 | 1970 | 1084 | 260 | 12.5 | 1270 | 445 | 1920 | 850 | 1970 | 900 |
| XBC9.0/35-100 | 1270 | 694 | 2050 | 1034 | 1970 | 1084 | 260 | 12.5 | 1270 | 694 | 1920 | 850 | 1970 | 900 |
| XBC10.8/35-100 | 1400 | 694 | 2050 | 1034 | 2100 | 1084 | 260 | 12.5 | 1400 | 694 | 2050 | 555 | 2100 | 900 |
| XBC12.5/35-100 | 1400 | 694 | 2050 | 1034 | 2100 | 1084 | 260 | 12.5 | 1400 | 694 | 2050 | 555 | 2100 | 900 |
| XBC5.3/40-100 | 1105 | 445 | 1755 | 785 | 1805 | 835 | 260 | 12.5 | 1105 | 445 | 1755 | 850 | 1805 | 605 |
| XBC8.8/40-100 | 1270 | 694 | 1920 | 1034 | 1970 | 1084 | 260 | 12.5 | 1270 | 694 | 1920 | 850 | 1970 | 900 |
| XBC12.0/40-100 | 1400 | 694 | 2050 | 1034 | 2100 | 1084 | 260 | 12.5 | 1400 | 694 | 2050 | 850 | 2100 | 900 |
| XBC5.2/45-100 | 1105 | 445 | 1755 | 785 | 1805 | 835 | 260 | 12.5 | 1105 | 445 | 1755 | 555 | 1805 | 605 |
| XBC8.5/45-100 | 1270 | 694 | 1920 | 1034 | 1970 | 1084 | 260 | 12.5 | 1270 | 694 | 1920 | 850 | 1970 | 900 |
| XBC11.8/45-100 | 1820 | 694 | 2470 | 1034 | 2520 | 1084 | 260 | 12.5 | 1820 | 694 | 2470 | 850 | 2520 | 900 |
| XBC3.9/50-100 | 1075 | 445 | 1725 | 785 | 1775 | 835 | 260 | 12.5 | 1075 | 445 | 1725 | 555 | 1775 | 605 |
| XBC6.1/50-100 | 1270 | 694 | 1920 | 1034 | 1970 | 1084 | 260 | 12.5 | 1270 | 694 | 1920 | 850 | 1970 | 900 |
| XBC8.6/50-100 | 1400 | 694 | 2050 | 1034 | 2100 | 1084 | 260 | 12.5 | 1400 | 694 | 2050 | 850 | 2100 | 900 |
| XBC11.0/50-100 | 1820 | 694 | 2470 | 1034 | 2520 | 1084 | 260 | 12.5 | 1820 | 694 | 2470 | 850 | 2520 | 900 |
| XBC4.7/55-100 | 1800 | 445 | 2450 | 785 | 2500 | 835 | 260 | 12.5 | 1800 | 445 | 2450 | 555 | 2500 | 605 |
| XBC7.6/55-100 | 1270 | 694 | 1920 | 1034 | 1970 | 1084 | 260 | 12.5 | 1270 | 694 | 1920 | 850 | 1970 | 900 |
| XBC10.5/55-100 | 1820 | 694 | 2470 | 1034 | 2520 | 1084 | 260 | 12.5 | 1820 | 694 | 2470 | 850 | 2520 | 900 |
| XBC5.1/60-125 | 1820 | 445 | 2470 | 785 | 2520 | 835 | 260 | 12.5 | 1820 | 445 | 2470 | 555 | 2520 | 605 |
| XBC7.4/60-125 | 1404 | 694 | 2054 | 1034 | 2104 | 1084 | 260 | 12.5 | 1404 | 694 | 2054 | 850 | 2104 | 900 |
| XBC9.0/60-125 | 1404 | 694 | 2054 | 1034 | 2104 | 1084 | 260 | 12.5 | 1404 | 694 | 2054 | 850 | 2104 | 900 |
| XBC5.4/65125 | 1274 | 694 | 1924 | 1034 | 1974 | 1084 | 260 | 12.5 | 1274 | 694 | 1924 | 850 | 1974 | 900 |
| XBC8.8/65-125 | 1744 | 694 | 2394 | 1034 | 2444 | 1084 | 260 | 12.5 | 1744 | 694 | 2394 | 850 | 2444 | 900 |
| XBC3.4/70-125 | 1165 | 445 | 1815 | 785 | 1865 | 835 | 260 | 12.5 | 1165 | 445 | 1815 | 555 | 1865 | 605 |
| XBC5.8/70-125 | 1404 | 694 | 2054 | 1034 | 2104 | 1084 | 260 | 12.5 | 1404 | 694 | 2054 | 850 | 2104 | 900 |
| XBC8.6/70-125 | 1744 | 694 | 2394 | 1034 | 2444 | 1084 | 260 | 12.5 | 1744 | 694 | 2394 | 850 | 2444 | 900 |
| XBC4.5/80-125 | 1274 | 694 | 1924 | 1034 | 1974 | 1084 | 260 | 12.5 | 1274 | 694 | 1924 | 850 | 1974 | 900 |
| XBC7.6/80-125 | 1744 | 694 | 2394 | 1034 | 1244 | 1084 | 260 | 12.5 | 1744 | 694 | 2394 | 850 | 2444 | 900 |

| 型号TYPE | M | D | D1 | H | d |
| JGD2 | 12 | 150 | 130 | 65 | 7 |
| JGD3 | 16 | 200 | 170 | 87 | 11 |
| JGD4 | 20 | 290 | 260 | 133 | 11 |
1.本网页显示的XBC型柴油机消防泵安装尺寸、图片、压力、参数表等样本信息,为“LQ牌”消防泵厂家上海连渠泵业所有,请勿转载,转载必究。
2.上海连渠泵业有限公司是一家专业的消防泵生产厂家/制造商。生产的XBC型柴油机消防泵,质量可靠,价格合理,如果还需要了解其他消防泵,请来电咨询,我们也可根据客户要求专门定制。
3.由于编辑水平有限,以上信息仅作参考之用,错误和不妥之处在所难免,真诚希望您批评指正。
消防泵主要是根据各种不同的地方和不同的需要配备的消防抽送消防用水的泵。安装在消防车、固定灭火系统或其他消防设施上,用作输送水或泡沫溶液等液体灭火剂 的专用泵。消防泵顾名思义,消防上用的泵,根据不同的分类方式分为不同的种类,上海连渠泵业有限公司生产的有船用消防泵,柴油机消防泵,手抬机动消防泵,消防离心泵,管道消防泵 ,稳压供水消防成套设备,管道消防泵,立式消防泵,卧式消防泵,稳压供水消防泵等系列消防泵应用广泛,除消防之外还可以广泛用于环保、水处理、消防等部门用来抽送各类液体,是创 建无泄漏、无污染文明车间、文明工厂的理想用泵用与消防系统的泵类型都差不多的,只是扬程和流量有不同。消防泵的选型依据,应根据工艺流程,给排水要求等多方面需求慎重考虑后适 当选用或由消防专业人员推荐使用。