SZB型水环悬壁式真空泵(简称:SZB水环式真空泵),系采用悬壁式结构的水环式真空泵。可供抽吸空气或其他无腐蚀性、不溶于水、不含固体颗料的气体使用。上海连渠泵业有限公司生产的水环悬臂式真空泵的最低吸入压力为-0.086MPa。被广泛用于机械、石油、化工、制药、食品等工业及其他领域的各种介质的输送。
适用抽吸空气或不溶于水、不含固体颗粒、无腐蚀性气体最高真空度可达85%,特别适合于大型水泵引水用。特别适合于做大型水泵引水用。
目前制造的本型号泵有:SZB-4、SZB-8。其中4(8)表示当水银柱高为520毫米时的气量(升/秒)。

SZB水环式真空泵结构说明
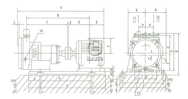
SZB型泵结构如图一所示、工作室由泵体(2)、泵盖(1)构成,上有进排气口(详见图三),下有放水螺塞(15)(见图三),泵盖上有指示旋转方向的箭头,泵体有填料函和填料压盖(5),内装填料(4)密封,泵体侧面的螺丝孔(16)(见图三)为补充水环消耗用水。
由铸铁制成叶轮(3),有12个叶片呈放射状均分布,有平衡孔(其中两个套扣供拆卸用)平衡轴向力。叶轮平键(9)与轴(10)联接并可沿轴向滑动调节间隙。轴为优质钢制成,支承在泵的托架(6)内的两个滚珠轴承(17)上右端有弹性联轴器(8)和电机直接联接。托架(6)用铸铁制成,有止口保证与泵体准确联接,轴承间有空腔,可存润滑油,用稀油或黄油均可。
从传动方向看,泵轴为逆时针方向旋转(右边法兰为排气口,左边法兰为进气口)。
结构图

SZB水环式真空泵工作性能表
| 型 号 | 排气量 | 毫米汞柱 mmHg |
最大真空 度 | 转 数 r/min |
电机功率 KW |
口径 | 泵重 Kg |
||
| m3/h | L/S | 吸入 | 吐出 | ||||||
| SZB-4 | 19.8 | 5.5 | 440 | 80 | 1450 | 1.5 | ZG1" | ZG1" | 42 |
| 14.4 | 4 | 520 | |||||||
| 7.2 | 2 | 600 | |||||||
| 0 | 0 | 650 | |||||||
| SZB-8 | 38.2 | 10.6 | 440 | 80 | 1450 | 2.2 | ZG1" | ZG1" | 45 |
| 28.8 | 8 | 520 | |||||||
| 14.4 | 4 | 600 | |||||||
| 0 | 0 | 650 | |||||||
SZB水环式真空泵工作性能曲线图


SZB水环式真空泵外形尺寸表
| 型号 | A | B | C | D | E | F | G | H | I | J | K | Y | Z | W | R | Q | P | O | X | 配用电机 |
| SZB-4 | 755 | 504.5 | 13 | 175.5 | 122 | 390 | 640 | 125 | 310 | 360 | 120 | 135 | 274 | 155 | 187 | 359 | 55 | 121 | 145 | Y90L-4-1.5KW |
| SZB-8 | 780 | 523 | 313 | 208 | 139 | 393 | 660 | 133 | 345 | 385 | 120 | 135 | 274 | 155 | 187 | 369 | 55 | 121 | 145 | Y100L1-4-2.2KW |
订购注意事项:
1.本网页显示的SZB型水环悬臂式真空泵安装尺寸、图片、真空度、最大排气量参数表等样本信息,为“LQ牌”真空泵厂家上海连渠泵业所有,请勿转载,转载必究。
2.上海连渠泵业有限公司是一家专业的真空泵生产厂家/制造商。生产的SZB型水环悬臂式真空泵,质量可靠,价格合理,如果还需要了解其他(真空泵),请来电咨询,我们也可根据客户要求专门定制。
3.由于编辑水平有限,以上信息仅作参考之用,错误和不妥之处在所难免,真诚希望您批评指正。
真空泵主要用于制造产生真空,产品可单独使用,也可作为增压泵、扩散泵、分子泵的前级泵、维持泵、钛泵的预抽真空泵用。可用于电真空容器制造、真空焊接、印 刷、吸塑、制冷设备维修及仪器仪表设备配套和实验室等。上海连渠泵业生产的真空泵主要产品有2X型双级旋片式真空泵、SK系列水环式真空泵、水力喷射器水冲真空泵、SZB型水环悬臂式真 空泵、XD型单级旋片式真空泵、X-100B型旋片式机械真空泵、H-150型滑阀式真空泵等各种真空泵产品。询价或技术咨询各类真空泵请直接联系我公司真空泵销售或工程师。